

Falke Immobilien- und Beratungszentrum e.K.
Frau Devrim Sahin
+49 ···
Nr. anzeigenPreise & Kosten
Provision für Käufer
provisionsfrei
Lage
Lagebeschreibung / 21079 Hamburg-Harburg;
Die Wohnung befindet sich in zentraler und gefragter Lage von Hamburg-Harburg, einem Stadtteil mit stetiger Entwicklung und hoher Wohnraumnachfrage im Süden der Hansestadt. Die Wohnung liegt in einem gewachsenen Wohnumfeld mit überwiegend gepfleg-ter Mehrfamilienhausbebauung. Hier...
Die Wohnung
Wohnungslage
Erdgeschoss
Bezug
sofort
Derzeitige Nutzung
frei
Wohnanlage
Energie & Heizung
Warum sehe ich diese Anzeige? – Du siehst diese Anzeige basierend auf Ihrer Navigation auf unserer Website und den Suchkriterien, die du verwendet hast.
Energieausweistyp
Bedarfsausweis
Gebäudetyp
Wohngebäude
Baujahr laut Energieausweis
1902
Wesentliche Energieträger
Erdgas
Gültigkeit
20.03.2018 bis 19.03.2028
Effizienzklasse
F
Endenergiebedarf
165,00 kWh/(m²·a)
Weitere Energiedaten
Energieträger
Gas
Heizungsart
Etagenheizung
Details
Objektbeschreibung
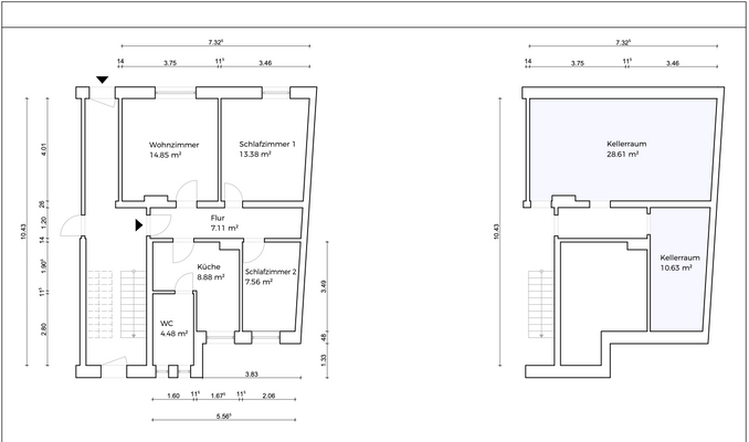
Frisch renovierte 3-Zimmer-Altbauwohnung (ca. 56 m²) mit ca. 40 m² Kelle – frei geliefert
21079 Hamburg-Harburg
In einem gepflegten Mehrfamilienhaus aus dem Jahr 1912 befindet sich diese charmante und frisch renovierte 3-Zimmer-Wohnung mit ca. 56 m² Wohnfläche.
Die Wohnung wird frei geliefert und eignet sich...
Ausstattung
Eine attraktive, sofort verfügbare Altbauwohnung mit moderner Innenausstattung und außergewöhnlich großem Kellerraum – in gefragter Lage von Hamburg-Harburg.
Weitere Informationen
Eigennutzer, die sofort einziehen möchten
Paare oder kleine Familien
Kapitalanleger (durch freie Lieferung flexibel vermietbar)
Käufer, die zusätzlichen Stauraum oder Hobbyfläche benötigen
Anbieter der Immobilie
Falke Immobilien- und Beratungszentrum e.K.
Küstersweg 20c, 21079 Harburg

Online-ID: 2nhqe5r
Referenznummer: 31
Finde Angebote wie dieses
Hier geht es zu unserem Impressum, den Allgemeinen Geschäftsbedingungen, den Hinweisen zum Datenschutz und nutzungsbasierter Online-Werbung.