
ohne-makler.net - Immobilien selbst vermarkten
Privat vom Eigentümer
Kontaktiere den Anbieter schriftlich, es ist keine Telefonnummer hinterlegt.
Preise & Kosten
Provision für Käufer
provisionsfrei
Lage
· Hervorragende Verkehrsanbindung an die S-Bahn, Zug und Bus nach München, sowie zum Flughafen MUC, nur 3 Minuten zu Fuß.
· Fußläufige Einkaufsmöglichkeiten in den Schlüterhallen und der Stadtmitte, Universität in unmittelbarer Umgebung
· Schnelle Autobahnanbindung
Infrastruktur (im Umkreis von 5 km):
Apotheke...
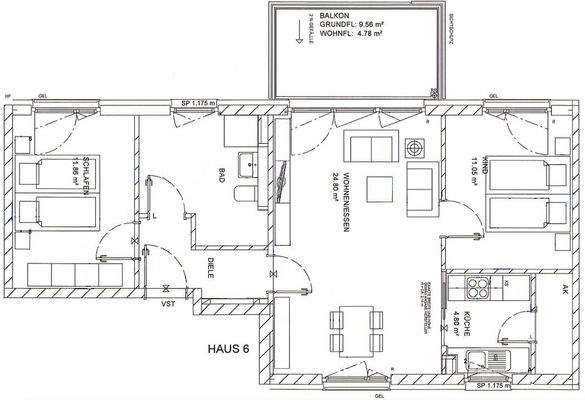
Die Wohnung
Wohnungslage
3. Geschoss
Bezug
sofort
Wohnanlage
Energie & Heizung
Warum sehe ich diese Anzeige? – Du siehst diese Anzeige basierend auf Ihrer Navigation auf unserer Website und den Suchkriterien, die du verwendet hast.
Energieausweistyp
Bedarfsausweis
Gebäudetyp
Wohngebäude
Effizienzklasse
B
Endenergiebedarf
66,00 kWh/(m²·a)
Weitere Energiedaten
Energieträger
Pellets
Heizungsart
Fußbodenheizung
Details
Objektbeschreibung
Provisionsfrei! Direkt vom Eigentümer. Der Preis ist individuell verhandelbar.
Auf Wunsch leer oder vollständig möbliert mit allen Geräten
Hervorragende Lage - Ideal für Eigennutzer und Kapitalanleger - eine attraktive Chance in der Universitätsstadt Freising bei München
Highlights:
· Sofort bezugsfrei...
Ausstattung
Balkon, Keller, Fahrstuhl, Vollbad, Duschbad, Einbauküche, Barrierefrei, Parkett, Fliesen
Bemerkungen:
· Bodentiefe Fenster für viel Tageslicht
· Praktischer Abstellraum für zusätzlichen Stauraum
· Gegensprechanlage für mehr Sicherheit
· Zahlreiche Besucherstellplätze
· Sonniger Balkon mit Licht &...
Preisinformation
1 Tiefgaragenstellplatz, Kaufpreis: 25.000,00 EUR
Weitere Informationen
Sonstiges
Heizungsart: Fußbodenheizung
Energieträger: Holzpellets
Makleranfragen nicht erwünscht. Nach § 7 UWG sind unaufgeforderte Kontaktaufnahmen durch Makler ohne ausdrückliche Einwilligung des Empfängers verboten!
ohne-makler (OM) ist weder Anbieter noch Vermittler der Immobilie. OM betreibt eine...
Anbieter der Immobilie
ohne-makler.net - Immobilien selbst vermarkten
Humboldtstr. 25 A, 21509 Glinde
Privat vom Eigentümer
Dein Ansprechpartner
Kontaktiere den Anbieter schriftlich, es ist keine Telefonnummer hinterlegt.
Online-ID: 2nhqc5f
Referenznummer: 426800
Finde Angebote wie dieses
Hier geht es zu unserem Impressum, den Allgemeinen Geschäftsbedingungen, den Hinweisen zum Datenschutz und nutzungsbasierter Online-Werbung.