

DAHLER Potsdam | Berlin-Wannsee | Kleinmachnow
Frau Alana Sieske
033 ···
Nr. anzeigenPreise & Kosten
Provision für Käufer
3,00% inkl. gesetzl. MwSt. bezogen auf den beurkundeten Kaufpreis
Lage
Die Villa liegt malerisch auf dem sogenannten "Glienicker Horn", eingebettet in Wasser- und Parklandschaften und nur wenige Schritte von der geschichtsträchtigen Glienicker Brücke entfernt. Diese exklusive Adresse in der Berliner Vorstadt zählt zu den begehrtesten Wohnlagen Potsdams. Sie bietet einen atemberaubenden Blick...
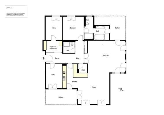
Die Wohnung
Wohnungslage
1. Geschoss
Bezug
nach Absprache
Wohnanlage
Energie & Heizung
Warum sehe ich diese Anzeige? – Du siehst diese Anzeige basierend auf Ihrer Navigation auf unserer Website und den Suchkriterien, die du verwendet hast.
Energieausweistyp
Verbrauchsausweis
Gebäudetyp
Wohngebäude
Baujahr laut Energieausweis
2004
Wesentliche Energieträger
GAS
Gültigkeit
bis 26.03.2029
Effizienzklasse
E
Endenergieverbrauch
145,00 kWh/(m²·a)
Weitere Energiedaten
Energieträger
Gas
Heizungsart
Fußbodenheizung
Details
Objektbeschreibung
Schon beim Betreten der parkähnlichen, privaten Wohnanlage entsteht das Gefühl, in eine andere Welt einzutreten - ruhig, stilvoll und repräsentativ. Hier erwartet Sie ein außergewöhnlicher Rückzugsort, der Großzügigkeit, Sicherheit und mediterranes Flair vereint. Auf dem malerischen "Glienicker Horn" entstanden ab 1998 sieben...
Ausstattung
. Exklusive Wohnanlage mit Zugangsbeschränkung (Gated Community)
. Großzügige Wohnfläche von ca. 185 m² im 1. Obergeschoss
. Ein lichtdurchfluteter, loftartiger Wohnbereich mit ca. 72 m² und bodentiefen Fenstern, ausgestattet mit eleganten Wood & Washi-Rollos
. Hochwertige, innovative Einbauelemente von...
Preisinformation
1 Tiefgaragenstellplatz
Weitere Informationen
Sonstiges
Ihre Werte sind bei uns in besten Händen
DAHLER ist auf die Vermittlung hochwertiger Wohnimmobilien in bevorzugten Lagen spezialisiert. Seit über 30 Jahren wird unser Unternehmen von Kirsten und Björn Dahler geführt und setzt mit Innovationskraft und Servicequalität Maßstäbe in der Branche. Unsere mehr als...
Anbieter der Immobilie

Online-ID: 2nhq75z
Referenznummer: D-POT6118-13-LIV
Finde Angebote wie dieses
Hier geht es zu unserem Impressum, den Allgemeinen Geschäftsbedingungen, den Hinweisen zum Datenschutz und nutzungsbasierter Online-Werbung.