
Erra Haus GmbH
Herr Reiner Rackl
015 ···
Nr. anzeigenPreise & Kosten
Provision für Käufer
provisionsfrei
Lage
Deining im Neubaugebiet in der St.-Josef-Str. 3. Eine absolut ruhige u. sehr schöne Wohnlage. Eine perfekte Südlage wo Sie an der Terrasse viel sonnige Stunden verbringen können.
Die Wohnung
Bezug
2027
Wohnanlage
Energie & Heizung
Warum sehe ich diese Anzeige? – Du siehst diese Anzeige basierend auf Ihrer Navigation auf unserer Website und den Suchkriterien, die du verwendet hast.
Energieausweistyp
Bedarfsausweis
Gebäudetyp
Wohngebäude
Baujahr laut Energieausweis
2026
Wesentliche Energieträger
Wärmepumpe
Gültigkeit
01.03.2026 bis 01.03.2026
Effizienzklasse
A+
Endenergiebedarf
11,62 kWh/(m²·a)
Details
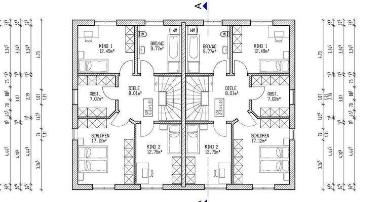
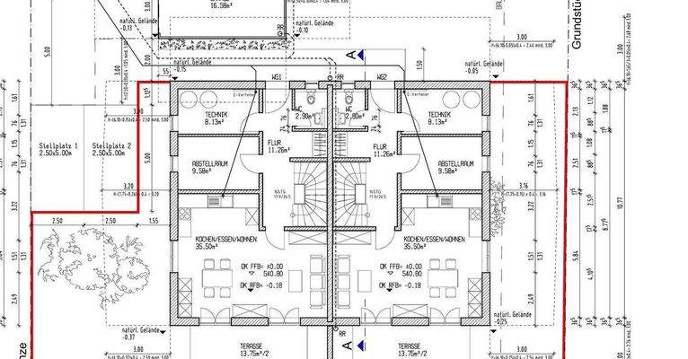
Objektbeschreibung
Objektbeschreibung
Ein sehr schönes Zweifamilienhaus im Doppelhausstiel. In einer sehr ruhigen Lage im Neubaugebiet. Die Baugenehmigung liegt vor, und mit dem Bau wurde bereits begonnen. Erdarbeiten, Bodenplatte, Dämmung, usw. sind fertig, siehe Fotos.
Als Massivhaus in KFW-40 QNG-Plus Bauweise, mit...
Dokumente
Anbieter der Immobilie
Erra Haus GmbH
Hermannsberg 22, 92334 Berching
Online-ID: 2nhna5t
Finde Angebote wie dieses
Hier geht es zu unserem Impressum, den Allgemeinen Geschäftsbedingungen, den Hinweisen zum Datenschutz und nutzungsbasierter Online-Werbung.