
Oekogeno
Frau Lorina Hermann
Kontaktiere den Anbieter schriftlich, es ist keine Telefonnummer hinterlegt.
Preise & Kosten
Kaution
33.000 € Genossenschaftseinlage
Warum sehe ich diese Anzeige? – Du siehst diese Anzeige basierend auf Ihrer Navigation auf unserer Website und den Suchkriterien, die du verwendet hast.
Lage
Waldshut-Tiengen, unmittelbar an der Schweizer Grenze gelegen, ist mit ca. 24.200 Einwohner*innen die größte Stadt im Landkreis Waldshut.
Im Südosten bieten die Wutach und der nahe gelegene Wald vielfältige Möglichkeiten zur Erholung, Bewegung und Entspannung. Überquert man den Rhein in nur 3 km Entfernung, ist man...
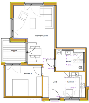
Die Wohnung
Wohnungslage
1. Geschoss
Wohnanlage
Energie & Heizung
Warum sehe ich diese Anzeige? – Du siehst diese Anzeige basierend auf Ihrer Navigation auf unserer Website und den Suchkriterien, die du verwendet hast.
Weitere Energiedaten
Energieträger
Blockheizkraftwerk
Haustyp
KfW 40
Heizungsart
Fußbodenheizung, Zentralheizung
Details
Objektbeschreibung
Die 2-Zimmerwohnung ist zusätzlich zum Treppenhaus bequem über den Aufzug erreichbar. Der Wohnküche ist gleich im großen Eingangsbereich ausgewiesen. Hier könnten Sie noch einen kleinen Tisch aufstellen. Die wunderschöne Einbauküche kann für 6.000 € übernommen werden.
Um die Ecke erreichen Sie das geräumige Wohn- (Ess-)...
Weitere Informationen
Gemeinschaftliches Wohnprojekt
Bitte beachten Sie, dass es sich bei unserem Projekt um mehr als ein klassisches Mietverhältnis handelt. Als Wohnungsgenossenschaft bieten wir ein gemeinschaftlich getragenes Wohnkonzept. Mit dem Erwerb von Genossenschaftsanteilen werden Sie Miteigentümer*in der Genossenschaft und damit Teil...
Anbieter der Immobilie
Oekogeno
Wilhelmstraße 8, 79098 Freiburg im Breisgau
Frau Lorina Hermann
Dein Ansprechpartner
Kontaktiere den Anbieter schriftlich, es ist keine Telefonnummer hinterlegt.
Online-ID: 2nhmk5m
Finde Angebote wie dieses
Hier geht es zu unserem Impressum, den Allgemeinen Geschäftsbedingungen, den Hinweisen zum Datenschutz und nutzungsbasierter Online-Werbung.