
J & K Immobilien GmbH
Frau Kathrin Kunze
+49 ···
Nr. anzeigenPreise & Kosten
Provision für Käufer
provisionsfrei
Lage
Das Reihenendhaus befindet sich in dem Stadtteil Sankt Leon-Rot, welcher im Rhein-Neckar-Kreis in Baden-Württemberg liegt. Der Stadtteil zeichnet sich durch seine ruhige und familienfreundliche Atmosphäre aus und bietet eine gute Infrastruktur mit verschiedenen Einkaufsmöglichkeiten, Schulen und Freizeitangeboten in...
Das Haus
Kategorie
Reihenendhaus
Energie & Heizung
Warum sehe ich diese Anzeige? – Du siehst diese Anzeige basierend auf Ihrer Navigation auf unserer Website und den Suchkriterien, die du verwendet hast.
Weitere Energiedaten
Haustyp
Massivhaus
Details
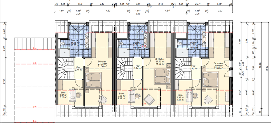
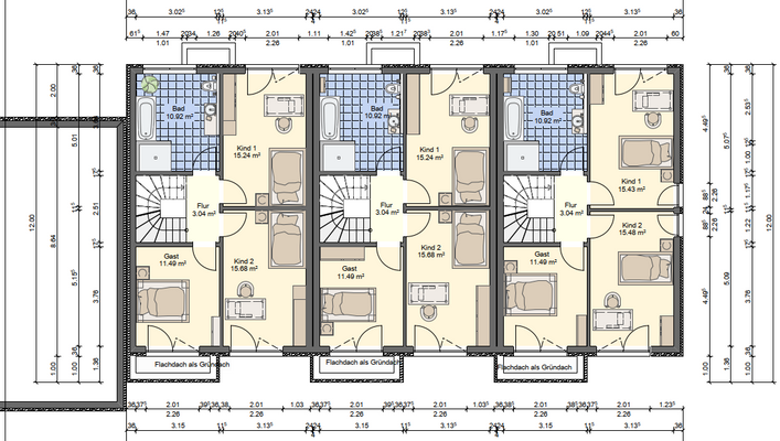
Objektbeschreibung
Ein absoluter Wohntraum in Form eines Reihenendhauses in schöner Lage in St. Leon-Rot.
Diese Immobilie erfüllt sämtliche Erwartungen an gehobenes sowie energetisch modernes Wohnen und Leben.
Auf 268m² Grundstücksfläche entsteht hier vielleicht genau Ihr persönliches Traumhaus mit 191,74m² Wohnfläche und einem...
Ausstattung
Bei der Ausstattung dieser Immobilie haben wir größten Wert auf die Auswahl erstklassiger Markenprodukte von top Herstellern gelegt.
Egal ob im Elektronikbereich oder der Auswahl der Bodenbeläge, edler Stil und exklusive Materialien gehören hier zur Standardausstattung.
Besondere Merkmale sind außerdem eine...
Preisinformation
2 Stellplätze, Kaufpreis je: 7.500,00 EUR
Weitere Informationen
Sonstiges
Auf Wunsch haben Sie als Käufer dieser exklusiven Immobilie auch einschlägiges Mitbestimmungsrecht, sowohl beim Grundriss als auch bei der Innenausstattung Ihres neuen Traumhauses.
Planen Sie mit uns individuell nach Ihren Bedürfnissen und Wünschen.
Ein offener und vertrauensvoller Austausch ist uns dabei...
Anbieter der Immobilie
Online-ID: 2nhhl5z
Referenznummer: 69736#I26Ff
Finde Angebote wie dieses
Hier geht es zu unserem Impressum, den Allgemeinen Geschäftsbedingungen, den Hinweisen zum Datenschutz und nutzungsbasierter Online-Werbung.