

Raiffeisenbank Schwaben Mitte eG
Herr Philipp Hartmann
+49 ···
Nr. anzeigenPreise & Kosten
Provision für Käufer
3,57 % inkl. MwSt.
Lage
Der sonnige Wohnort Regglisweiler, südlich von Ulm gelegen, ist ein sehr beliebter Wohnort mit guter Infrastruktur und in der Nähe von Dietenheim, Illertissen und Vöhringen. Die schmucke Gemeinde fusionierte 1972 mit Dietenheim und hat derzeit mehr als 2300 Einwohner. Mit traumhaften Blick auf das Kloster Brandenburg, lässt...
Das Haus
Kategorie
Einfamilienhaus
Baujahr
1966
Bezug
nach Absprache
Energie & Heizung
Warum sehe ich diese Anzeige? – Du siehst diese Anzeige basierend auf Ihrer Navigation auf unserer Website und den Suchkriterien, die du verwendet hast.
Energieausweistyp
Bedarfsausweis
Gebäudetyp
Wohngebäude
Baujahr laut Energieausweis
1966
Wesentliche Energieträger
GAS
Gültigkeit
bis 11.02.2036
Effizienzklasse
H
Endenergiebedarf
251,70 kWh/(m²·a)
Weitere Energiedaten
Haustyp
Massivhaus
Energieträger
Gas
Heizungsart
offener Kamin, Zentralheizung
Details
Objektbeschreibung
Willkommen bei dieser besonderen Immobilie in Dietenheim / Regglisweiler! Das Einfamilienhaus aus dem Baujahr 1966 bietet eine einmalige Gelegenheit, ein gemütliches Zuhause in ruhiger Lage zu erwerben. Auf einem Grundstück von ca. 336 m² gelegen, erstreckt sich das Haus über drei Etagen und bietet eine Wohnfläche von rund...
Ausstattung
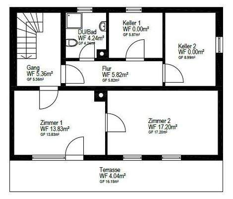
UG: großes Zimmer mit separatem Zugang zur südlich orientierten Terrasse und Garten, ein weiteres Zimmer, Tageslichtduschbad, Vorratsraum, HWR
EG: Eingangsbereich, nördlich ausgerichtetes Tageslichtbad und Küche, Ess- und Wohnzimmer, südlich orientiertes Schlafzimmer
DG: für weiteren Wohnraum...
Weitere Informationen
Stichworte
Anzahl der Schlafzimmer: 3, Anzahl der Badezimmer: 2, Anzahl Terrassen: 1, Kellerfläche: 14,00 m², 3 Etagen, Distanz zum Kindergarten: 1.00, Distanz zur Grundschule: 1.00, Distanz zur Realschule: 5.70, Distanz zum Gymnasium: 9.30, Distanz zur Autobahn: 9.60
Anbieter der Immobilie
Raiffeisenbank Schwaben Mitte eG
Luitpoldstraße 2, 86381 Krumbach (Schwaben)

Online-ID: 2nhhj5h
Referenznummer: 1002-25
Finde Angebote wie dieses
Hier geht es zu unserem Impressum, den Allgemeinen Geschäftsbedingungen, den Hinweisen zum Datenschutz und nutzungsbasierter Online-Werbung.