
KENSINGTON Immobilien Berlin-Pankow
Marie Banach
+49 ···
Nr. anzeigenPreise & Kosten
Provision für Käufer
7,14 % inkl. ges. MwSt.
Lage
Der Ortsteil Tegel zählt neben Hermsdorf und Heiligensee zu den gehobenen und besonders nachgefragten Wohnlagen im Bezirk Reinickendorf. Die hohe Lebensqualität ergibt sich vor allem aus der unmittelbaren Nähe zur Natur. Der weitläufige Tegeler Forst, der Tegeler See sowie mehrere Naturschutzgebiete prägen das grüne Umfeld...
Das Haus
Kategorie
Mehrfamilienhaus
Baujahr
2014
Derzeitige Nutzung
vermietet
Energie & Heizung
Warum sehe ich diese Anzeige? – Du siehst diese Anzeige basierend auf Ihrer Navigation auf unserer Website und den Suchkriterien, die du verwendet hast.
Energieausweistyp
Verbrauchsausweis
Gebäudetyp
Wohngebäude
Wesentliche Energieträger
Gas
Gültigkeit
21.09.2020 bis 20.09.2030
Effizienzklasse
C
Endenergieverbrauch
92,10 kWh/(m²·a)
Weitere Energiedaten
Energieträger
Gas
Details
Objektbeschreibung
Selten bietet sich die Gelegenheit, in einer gefragten Lage wie Berlin-Tegel ein Mehrfamilienhaus mit diesem Entwicklungspotenzial zu erwerben.
Das Objekt befindet sich nur etwa 200 Meter vom U-Bahnhof Holzhauser Straße entfernt, in angenehmer und gewachsener Wohnlage von Berlin-Tegel. Auf dem rund 849 m² großen...
Ausstattung
INVESTMENT
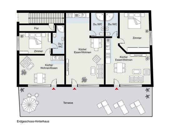
- Gesamt-Wohnfläche: ca. 348 m² (ohne Anrechnung von Keller, Treppenhaus, Terrassen etc.)
- Grundstücksgröße: ca. 849 m²
- insgesamt sieben Wohneinheiten
- Vorderhaus mit einer modernisierten 3-Zimmer-Wohnung und Teil-Unterkellerung
- Hinterhaus mit drei 2-Zimmer-Wohnungen, zwei 1-Zimmer-Wohnungen...
Preisinformation
Nettorendite Ist in %: 4,56
Nettorendite Soll in %: 6,41
Weitere Informationen
Sonstiges
Unsere Angebote sind freibleibend und unverbindlich. Die Angaben basieren auf Aussagen des Verkäufers. Irrtum sowie Zwischenverkauf bleiben ausdrücklich vorbehalten. Der Makler-Vertrag mit uns und/oder unserem Beauftragten kommt durch schriftliche Vereinbarung oder durch die Inanspruchnahme unserer...
Anbieter der Immobilie
Online-ID: 2nhgb5h
Referenznummer: KBP_660
Finde Angebote wie dieses
Hier geht es zu unserem Impressum, den Allgemeinen Geschäftsbedingungen, den Hinweisen zum Datenschutz und nutzungsbasierter Online-Werbung.