
Bornemann Immobilien
Herr/Frau Valentin Bornemann
071 ···
Nr. anzeigenPreise & Kosten
Provision für Käufer
4 % zzgl. ges. MwSt.
Die Nachweis- und/oder Vermittlungsprovision beträgt 4 % des Kaufpreises zzgl. ges. MwSt. und ist fällig mit Abschluss des notariellen Kaufvertrages.
Lage
Das Wohn-/Geschäftshaus befindet sich im Heilbronner Stadtteil Neckargartach, einer ruhigen und gewachsenen Wohnlage im nördlichen Stadtgebiet. Das Umfeld ist geprägt von gepflegten Mehrfamilienhäusern, kleineren Geschäften und Grünbereichen, die zu einem angenehmen und familienfreundlichen Wohnumfeld beitragen.
Die...
Das Haus
Baujahr
1876
Bezug
Ab sofort
Energie & Heizung
Warum sehe ich diese Anzeige? – Du siehst diese Anzeige basierend auf Ihrer Navigation auf unserer Website und den Suchkriterien, die du verwendet hast.
Weitere Energiedaten
Energieträger
Gas
Details
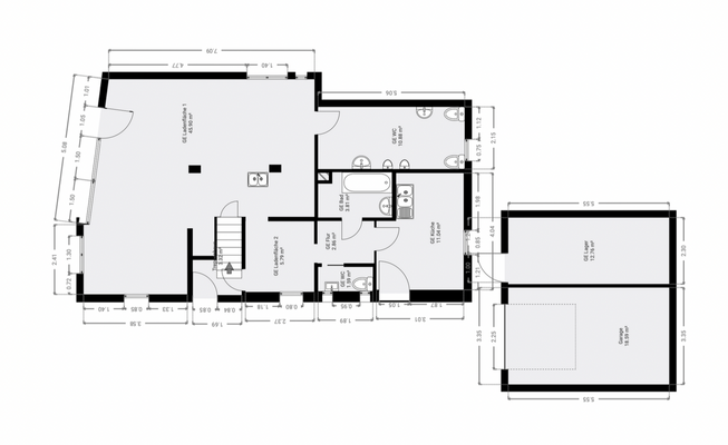
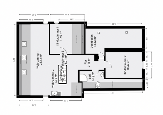
Objektbeschreibung
Dieses Wohn- und Geschäftshaus befindet sich in attraktiver Lage bei Heilbronn und erstreckt sich über insgesamt drei Etagen. Es bietet vielfältige Nutzungsmöglichkeiten und wird leerstehend veräußert, sodass sich damit dem neuen Eigentümer ein hervorragendes Entwicklungspotenzial eröffnet wird. Im Jahr 2014 wurde die Fassade...
Preisinformation
2 Garagenstellplätze
Weitere Informationen
Sonstiges
Vereinbaren Sie noch heute einen Besichtigungstermin!
Um die Kontaktanfrage zu bearbeiten, bitten wir Sie um Mitteilung Ihrer vollständigen Kontaktdaten.
Energiepass
Energieausweis wird bei Besichtigung vorgelegt.
Stichworte
Garage vorhanden, Nutzfläche: 31,00 m², Anzahl der Badezimmer: 2...
Anbieter der Immobilie
Online-ID: 2nhg65u
Referenznummer: 164185066
Finde Angebote wie dieses
Hier geht es zu unserem Impressum, den Allgemeinen Geschäftsbedingungen, den Hinweisen zum Datenschutz und nutzungsbasierter Online-Werbung.