
Ulf Weise Immobilien + Consulting GmbH
Herr Ulf Weise
015 ···
Nr. anzeigenPreise & Kosten
Provision für Käufer
3,57 % inkl. MwSt.
Lage
Geografische Einordnung: Beulwitz ist ein Stadtteil der Stadt Saalfeld/ Saale im Landkreis Saalfeld-Rudolstadt im Bundesland Thüringen, Deutschland. Es liegt rund 2 km nördlich des Zentrums von Saalfeld/ Saale und knapp 0,5 km westlich der inneren Stadtgrenze von Saalfeld/ Saale.
landschaftlicher Kontext: Die Region...
Die Immobilie
Zu diesem Angebot wurden vom Anbieter keine weiteren Daten hinterlegt. Für weitere Informationen bitte den Anbieter kontaktieren.
Nach Informationen fragenDetails
Objektbeschreibung
Hier steht ein Baugrundstück mit einer Größe von ca. 566 m² zum Verkauf. Die Eigentümer haben diese Grundstück zur Bebauung vorbereitet und ein Holzhaus darauf geplant. Dafür liegt eine Baugenehmigung vor. Die Übernahm bzw. Einstieg in das Projekt ist nicht zwingend. Der Einzelerwerb des Grundstückes zur eigenen Beplanung...
Ausstattung
Baugrundstück: Gemeinde Saalfeld
Gemarkung: Beulwitz
Flur :O Flurstück: 49/5
Grundstücksgröße: 566 m2
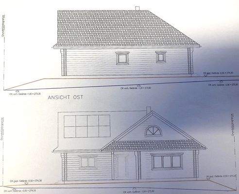
Haustyp: Blockhaus Typ Canada 120, Bausatz incl. Fenster und Türen
Eigenleistungen: Erstellung Bodenplatte incl. Erschließung, Aufbau des Bausatzes, Schornstein,
Ausbaugewerke, Innentreppe...
Weitere Informationen
Sonstiges
VERBRAUCHERINFORMATION
1. Maklerleistung ist der Nachweis der Gelegenheit zum Abschluss eines Vertrages bzw. Vermittlung eines Vertrages über eine Immobilie gegen die Courtagezahlungspflicht des Kunden
2. Unternehmer, Anschrift, Beschwerdeadressat
Ulf Weise Immobilien + Consulting GmbH, Humboldstraße 8...
Anbieter der Immobilie
Online-ID: 2nhft5y
Referenznummer: uw-0250
Finde Angebote wie dieses
Hier geht es zu unserem Impressum, den Allgemeinen Geschäftsbedingungen, den Hinweisen zum Datenschutz und nutzungsbasierter Online-Werbung.