

ORANGE Immobilienagentur
Herr Michael Krebs
004 ···
Nr. anzeigenPreise & Kosten
Provision für Käufer
provisionsfrei
Abschreibung/Anlage
Denkmalschutz-Afa
Lage
Der Weißgerbergraben liegt am westlichen Rand der Regensburger Altstadt und gehört zu den historisch gewachsenen Straßen entlang des ehemaligen Stadtgrabens.
Die Umgebung zeichnet sich aus durch:
historische Altstadthäuser und denkmalgeschützte Ensembles
kurze Wege zu Dom St. Peter, Bismarckplatz und...
Das Haus
Kategorie
Stadthaus
Baujahr
1400
Bezug
sofort
Energie & Heizung
Warum sehe ich diese Anzeige? – Du siehst diese Anzeige basierend auf Ihrer Navigation auf unserer Website und den Suchkriterien, die du verwendet hast.
Energieausweis: für diesen Gebäudetyp nicht notwendig
Weitere Energiedaten
Energieträger
Gas
Details
Objektbeschreibung
Zum Verkauf steht ein historisches Altstadthaus im Herzen der Regensburger Altstadt, gelegen im Weißgerbergraben 4. Das Gebäude befindet sich innerhalb des UNESCO-Welterbes "Altstadt Regensburg mit Stadtamhof" und stellt ein bedeutendes Baudenkmal der historischen Stadtstruktur dar.
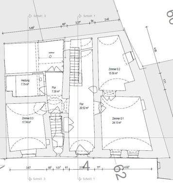
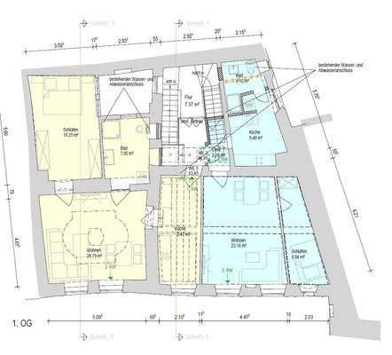
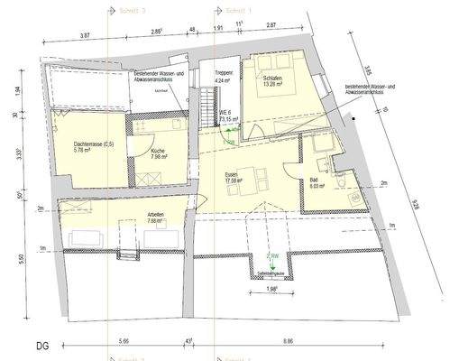
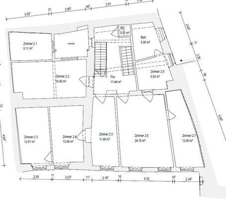
Das dreigeschossige Wohn- und...
Ausstattung
Die Sanierungsmaßnahmen können unter anderem umfassen:
- statische Ertüchtigung der Tragstruktur
- Dachstuhl- und Dachsanierung
- Sanierung bzw. Erneuerung der Haustechnik
- Restaurierung der historischen Fassade und der Fassadenelemente
- Innenausbau unter Berücksichtigung denkmalrechtlicher...
Weitere Informationen
Sonstiges
Gerne sind wir für weitere Fragen und Informationen unter Tel.: 0941 / 698498 - 80 erreichbar.
Alle Angaben stammen vom Eigentümer der Makler übernimmt hierfür keine Haftung.
Anfragen über die Immobilienportale werden nur mit vollständiger Adresse und Telefonnummer bearbeitet. Jeder ORANGE...
Anbieter der Immobilie
ORANGE Immobilienagentur
Kumpfmühler Str. 59, 93051 Regensburg

Online-ID: 2nhfn5s
Referenznummer: 291-VW-K.
Finde Angebote wie dieses
Hier geht es zu unserem Impressum, den Allgemeinen Geschäftsbedingungen, den Hinweisen zum Datenschutz und nutzungsbasierter Online-Werbung.