
Evernest GmbH
Merlin Thies
+49 ···
Nr. anzeigenPreise & Kosten
Provision für Käufer
3.57 inkl. MwSt.
Bei Abschluss eines notariellen Kaufvertrages ist eine Käuferprovision vom Käufer in Höhe von 3.57 % inkl. MwSt. aus dem Kaufpreis fällig.
Lage
Hohenwestedt ist eine attraktive Gemeinde im Kreis Rendsburg-Eckernförde und überzeugt durch ihre verkehrsgünstige Lage im Herzen von Schleswig-Holstein. Der Ort vereint eine naturnahe Umgebung mit einer sehr gut ausgebauten Infrastruktur und schafft damit eine gelungene Balance zwischen dörflicher Idylle und guter...
Das Haus
Kategorie
Mehrfamilienhaus
Baujahr
1900
Energie & Heizung
Warum sehe ich diese Anzeige? – Du siehst diese Anzeige basierend auf Ihrer Navigation auf unserer Website und den Suchkriterien, die du verwendet hast.
Energieausweistyp
Bedarfsausweis
Gebäudetyp
Wohngebäude
Effizienzklasse
H
Endenergiebedarf
315,60 kWh/(m²·a)
Weitere Energiedaten
Energieträger
Gas
Details
Objektbeschreibung
Diese charmante Immobilie aus dem Baujahr 1900 befindet sich in zentraler und dennoch ruhiger Lage von Hohenwestedt und vereint historischen Charakter mit vielseitigen Nutzungsmöglichkeiten. Das Haus wird derzeit als Zweifamilienhaus genutzt, kann jedoch ebenso problemlos als großzügiges Einfamilienhaus bewohnt werden. Dank...
Ausstattung
Ausstattung & Details:
- Baujahr ca. 1900
- Grundstücksgröße ca. 563 m²
- Gesamtwohnfläche ca. 221,93 m²
- Zweifamilienhaus (Nutzung auch als Einfamilienhaus möglich)
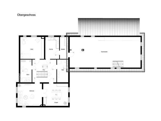
- 8,5 Zimmer verteilt auf Erdgeschoss und Dachgeschoss
- Zwei separate Wohneinheiten (WEG-Teilung vorhanden)
- Beide Wohnungen aktuell...
Weitere Informationen
Stichworte
Garage vorhanden, Anzahl der Schlafzimmer: 4, Anzahl der Badezimmer: 2, Anzahl Terrassen: 1, 3 Etagen
Anbieter der Immobilie
Online-ID: 2nhdd5y
Referenznummer: L-JNKYZ3J
Finde Angebote wie dieses
Hier geht es zu unserem Impressum, den Allgemeinen Geschäftsbedingungen, den Hinweisen zum Datenschutz und nutzungsbasierter Online-Werbung.