
Schwabenhaus Hamburg - Gunda Kuhlen - Handelsvertretung für die Schwabenhaus GmbH
Gunda Kuhlen
+49 ···
Nr. anzeigenPreise & Kosten
Provision für Käufer
provisionsfrei
Lage
Dies ist ein real vorhandener Bauplatz, auf dem wir ein Beispiel Haus geplant haben.
Bitte haben Sie dafür Verständnis, dass wir die genaue Adresse erst in einem persönlichen Gespräch bekannt geben! Anfragen werden nur mit komplett angegebenen Kontaktdaten bearbeitet.
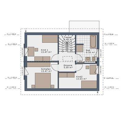
Das Haus
Kategorie
Einfamilienhaus
Energie & Heizung
Warum sehe ich diese Anzeige? – Du siehst diese Anzeige basierend auf Ihrer Navigation auf unserer Website und den Suchkriterien, die du verwendet hast.
Weitere Energiedaten
Heizungsart
Fußbodenheizung
Details
Objektbeschreibung
Herzlich willkommen in Ihrem neuen Zuhause, das speziell für familienorientierte Kunden wie Sie gestaltet wurde. Diese Immobilie ist der ideale Ort, um gemeinsame Erinnerungen zu schaffen und ein harmonisches Familienleben zu führen.
Das Haus bietet ausreichend Platz für Ihre Familie, um zu Wachsen und Gedeihen. Mit...
Ausstattung
.Natürliche Materialien: Hochwertige, gesunde und natürliche Baustoffe schaffen eine warme und einladende Atmosphäre.
.Lichtdurchflutete Räume: Große Fensterflächen sorgen für eine optimale Nutzung von natürlichem Licht und schaffen eine offene, luftige Umgebung.
.Durchdachte Raumgestaltung: Die klare und funktionale...
Weitere Informationen
Sonstiges
Bei uns ist eine Voll- oder Teilfinanzierung über einen unserer starken Finanzierungspartner möglich - sogar ohne Eigenkapital! Auch bestehende Altschulden sind kein Problem, vorausgesetzt, die Bonität stimmt. Die Preise basieren auf 2026. Wenn Sie möchten, erklären wir Ihnen gerne alle Kostendetails und die...
Anbieter der Immobilie
Schwabenhaus Hamburg - Gunda Kuhlen - Handelsvertretung für die Schwabenhaus GmbH
Versmannstraße 54, 20457 Hamburg-Mitte
Online-ID: 2nhbw5e
Referenznummer: SH-368850
Finde Angebote wie dieses
Hier geht es zu unserem Impressum, den Allgemeinen Geschäftsbedingungen, den Hinweisen zum Datenschutz und nutzungsbasierter Online-Werbung.