

VBI – Volksbanken Immobilien GmbH
Frau Lena Havemeyer
+49 ···
Nr. anzeigenPreise & Kosten
Provision für Käufer
Bitte beachte, das Angebot kann bei Vertragsabschluss die Zahlung einer Provision beinhalten. Weitere Informationen erhältst Du vom Anbieter.
Lage
Das Objekt liegt in einer sehr ruhigen, kaum befahrenen Nebenstraße in Toplage von Osterholz-Scharmbeck. Die gewachsene Umgebung zeichnet sich durch eine angenehme Wohnatmosphäre und eine gute infrastrukturelle Anbindung aus. Einrichtungen des täglichen Bedarfs wie Einkaufsmöglichkeiten, Schulen, Kindergärten und...
Das Haus
Kategorie
Mehrfamilienhaus
Baujahr
1915
Derzeitige Nutzung
vermietet
Energie & Heizung
Warum sehe ich diese Anzeige? – Du siehst diese Anzeige basierend auf Ihrer Navigation auf unserer Website und den Suchkriterien, die du verwendet hast.
Energieausweistyp
Bedarfsausweis
Gebäudetyp
Wohngebäude
Baujahr laut Energieausweis
2012
Wesentliche Energieträger
GAS
Gültigkeit
bis 27.04.2034
Effizienzklasse
H
Endenergiebedarf
262,52 kWh/(m²·a)
Weitere Energiedaten
Energieträger
Gas
Heizungsart
Etagenheizung
Details
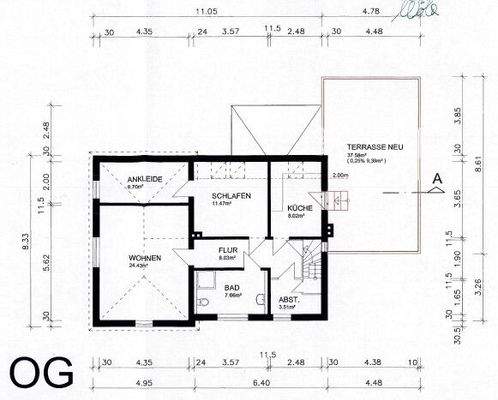
Objektbeschreibung
Erdgeschosswohnung 113m²
Der großzügige Wohnbereich bietet ausreichend Platz für einen Wohn- und Aufenthaltsbereich und bildet das Herzstück der Wohnung. Angrenzend befindet sich das separate Esszimmer sowie die Küche, wodurch kurze Wege und eine angenehme Wohnatmosphäre entstehen.
Neben dem Elternschlafzimmer...
Ausstattung
- 2022 Horizontalsperre Innenwände der EG Wohnung
- 2013 - 2020 Kunststofffenster mit Isolierverglasung
- 2013 Neue Dacheindeckung
- 2013 Neue Elektrik im EG & OG
- 2013 Badsanierung EG & OG
- 2013 Errichtung einer Dachterrasse (37m²)
- 2012 Gasheizung Vaillant Wohnung OG
- 1999 Gasheizung...
Weitere Informationen
Sonstiges
Alle Werte sind ca. Angaben, die wir den Unterlagen entnommen oder vom Verkäufer mitgeteilt bekommen haben.
Für alle unsere Angebote gelten unsere Allgemeinen Geschäftsbedingungen. Alle Angaben erfolgen ohne Gewähr.
Diese Immobilie wird so angeboten, dass kein Maklervertrag mit dem Kaufinteressenten...
Anbieter der Immobilie
VBI – Volksbanken Immobilien GmbH
Marktstr. 1-5, 27711 Osterholz-Scharmbeck

Online-ID: 2nhap55
Referenznummer: 783
Finde Angebote wie dieses
Hier geht es zu unserem Impressum, den Allgemeinen Geschäftsbedingungen, den Hinweisen zum Datenschutz und nutzungsbasierter Online-Werbung.