
immovario - Immobilien GmbH
Herr Fabian Strube
039 ···
Nr. anzeigenPreise & Kosten
Provision für Käufer
3,57% inkl. MwSt. zu zahlen vom Käufer! inkl. MwSt.
Lage
Die angebotene Etagenwohnung befindet sich in Magdeburgs begehrtem Stadtteil Alte Neustadt, der direkt nördlich an das pulsierende Zentrum der Landeshauptstadt angrenzt. Diese Lage vereint die Vorteile einer citynahen Wohngegend mit der Ruhe und dem Charme eines historisch gewachsenen Viertels. Der Stadtteil ist geprägt durch...
Die Wohnung
Wohnungslage
Erdgeschoss
Bezug
nach Vereinbarung
Derzeitige Nutzung
vermietet
Wohnanlage
Energie & Heizung
Warum sehe ich diese Anzeige? – Du siehst diese Anzeige basierend auf Ihrer Navigation auf unserer Website und den Suchkriterien, die du verwendet hast.
Energieausweistyp
Verbrauchsausweis
Gebäudetyp
Wohngebäude
Baujahr laut Energieausweis
1999
Wesentliche Energieträger
ERDGAS_SCHWER
Gültigkeit
bis 07.05.2028
Effizienzklasse
E
Endenergieverbrauch
141,00 kWh/(m²·a)
Weitere Energiedaten
Energieträger
Gas
Heizungsart
Zentralheizung
Details
Objektbeschreibung
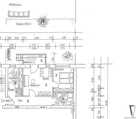
Zum Verkauf steht diese ansprechende 2-Raum-Wohnung mit Balkon und eigenem Gartenanteil!
Das Mehrfamilienhaus, ursprünglich im Jahr 1900 erbaut und in den 1990er Jahren umfassend saniert, verkörpert historischen Charme und zeitgemäße Wohnqualität mit 12 Wohneinheiten. Die angebotene Wohnung befindet sich in...
Ausstattung
- 2RW mit ca. 50 m² Wohnfläche
- aktuelle Mieteinnahmen: 4800€ p.a.
- Balkon
- Gartenanteil von ca. 45 m²
- Kellerabteil
- gepflegtes Mehrfamilienhaus
Preisinformation
Ist-Mieteinnahmen pro Jahr: 4.800,00 EUR
Weitere Informationen
Sonstiges
Wir haben Ihr Interesse geweckt? Vereinbaren Sie noch heute einen Besichtigungstermin.
---
Ihnen gefällt, was Sie sehen, aber dieses Objekt ist leider nicht das richtige für Sie?
Kein Problem! Wir haben eine Auswahl an Objekten zur Miete oder zum Kauf für Sie in unserem Angebot - schauen Sie...
Anbieter der Immobilie
Online-ID: 2nh6q5s
Referenznummer: mm1354
Finde Angebote wie dieses
Weitere Immobilien
Hier geht es zu unserem Impressum, den Allgemeinen Geschäftsbedingungen, den Hinweisen zum Datenschutz und nutzungsbasierter Online-Werbung.