

VR Bank Heilbronn Schwäbisch Hall eG
Herr Uwe Schierle
079 ···
Nr. anzeigenPreise & Kosten
Provision für Käufer
3,57% Käuferprovision inkl. Mwst. vom Kaufpreis
Lage
Die Maisonette-Wohnung befindet sich in zentraler und zugleich angenehm urbaner Lage von Schwäbisch Hall. Das direkte Umfeld ist geprägt von einer gewachsenen Innenstadtstruktur mit kurzen Wegen zu vielfältigen Einkaufsmöglichkeiten, gastronomischen Angeboten sowie Einrichtungen des täglichen Bedarfs.
Dank der sehr guten...
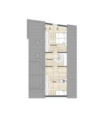
Die Wohnung
Wohnungslage
Dachgeschoss
Bezug
Vermietet
Derzeitige Nutzung
vermietet
Wohnanlage
Energie & Heizung
Warum sehe ich diese Anzeige? – Du siehst diese Anzeige basierend auf Ihrer Navigation auf unserer Website und den Suchkriterien, die du verwendet hast.
Energieausweistyp
Bedarfsausweis
Gebäudetyp
Wohngebäude
Baujahr laut Energieausweis
1850
Wesentliche Energieträger
GAS
Gültigkeit
bis 24.03.2033
Effizienzklasse
E
Endenergiebedarf
135,30 kWh/(m²·a)
Weitere Energiedaten
Energieträger
Gas
Heizungsart
Fußbodenheizung
Details
Objektbeschreibung
In begehrter Lage von Schwäbisch Hall - direkt in der Innenstadt - präsentiert sich diese stilvolle, großzügige Maisonettewohnung in einem überschaubaren Wohn- und Geschäftshaus als attraktive Kapitalanlage.
Das Gebäude wurde 2012 fachgerecht kernsaniert und überzeugt durch eine gehobene Ausstattungsqualität, eine...
Ausstattung
- Stilvolle Maisonettewohnung in einem überschaubaren Wohn- und Geschäftshaus
- Einbauküche
- Einbauschränke
- Fliesen- und Laminatböden
- Loggia
Weitere Informationen
Stichworte
Grundstücksfläche: 182,00 m², Anzahl der Schlafzimmer: 2, Anzahl der Badezimmer: 1, Anzahl der separaten WCs: 1, Anzahl Balkone: 1
Anbieter der Immobilie

Online-ID: 2nh5w5t
Referenznummer: 17923
Finde Angebote wie dieses
Hier geht es zu unserem Impressum, den Allgemeinen Geschäftsbedingungen, den Hinweisen zum Datenschutz und nutzungsbasierter Online-Werbung.