
McMakler GmbH
Ihr McMakler Team
080 ···
Nr. anzeigenPreise & Kosten
Provision für Käufer
Die Provision i.H.v. 3,57 % inkl. MwSt. ist mit Kaufvertragsbeurkundung fällig, sofern der Verkaufspreis über 83.000,00 € liegt.
Liegt der Verkaufspreis dagegen bei/unter 83. Weitere Informationen siehe Provisionshinweis.
Lage
Lage: Attraktive Lage in Jeckenbach mit besten Bedingungen für Selbstnutzer oder Investoren
Bildung und Betreuung: Kindergärten und einigen Schulen in ca. 6 km bis ca. 9 km Entfernung bieten Familienfreundlichkeit
Nahversorgung: Anlaufstellen wie Supermarkt und Bankfiliale in einem Radius von max. 6 km
Anbindung...
Das Haus
Kategorie
Einfamilienhaus
Baujahr
1850
Bezug
ab sofort
Energie & Heizung
Warum sehe ich diese Anzeige? – Du siehst diese Anzeige basierend auf Ihrer Navigation auf unserer Website und den Suchkriterien, die du verwendet hast.
Energieausweistyp
Bedarfsausweis
Gebäudetyp
Wohngebäude
Baujahr laut Energieausweis
1850
Wesentliche Energieträger
Öl
Effizienzklasse
G
Endenergiebedarf
232,30 kWh/(m²·a)
Weitere Energiedaten
Energieträger
Öl
Heizungsart
Zentralheizung
Details
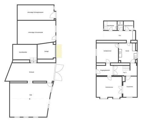
Objektbeschreibung
Objektnr: 1067066
Viel Potenzial für Gestaltung sowie Nutzung nach Bedarf. Im Jahr 2015 wurde das Tageslichtbadezimmer im 1.OG saniert und die Fenster im gesamten Haus wurden alle ca. 2000- 2013 in Kunststofffenster (Doppeltverglasung) ausgetauscht. Rollläden gibt es überall (manuell).
Die Öl-Zentralheizung von...
Ausstattung
+ doppeltverglaste Fenster v. ca. 2000-2013
+ Tageslichtbadezimmer 1.OG v.ca. 2015
+ gepflegter Stäbchenparkettboden, Laminat und PVC Boden
+ Insgesamt ca. 763 m² großes Grundstück
+ Ställe und Scheune und 1x Garage 4x Außenstellplätze im Innenhof
Weitere Informationen
Provisionshinweis
Die Provision i.H.v. 3,57 % inkl. MwSt. ist mit Kaufvertragsbeurkundung fällig, sofern der Verkaufspreis über 83.000,00 € liegt.
Liegt der Verkaufspreis dagegen bei/unter 83.000,00 €, ist die fest vereinbarte Mindestprovision i.H.v. mind. 5.950,00 € inkl. MwSt. mit Kaufvertragsbeurkundung fällig...
Anbieter der Immobilie
McMakler GmbH
Am Postbahnhof 17, 10243 Berlin
Online-ID: 2nh5d5y
Referenznummer: aec6f51183
Finde Angebote wie dieses
Hier geht es zu unserem Impressum, den Allgemeinen Geschäftsbedingungen, den Hinweisen zum Datenschutz und nutzungsbasierter Online-Werbung.