

Gilbers & Baasch Immobilien GmbH | Trier
Herr Markus Maas
+49 ···
Nr. anzeigenPreise & Kosten
Provision für Käufer
3,57% inkl. Mwst.
Lage
Die zum Verkauf stehende Gewerbehalle befindet sich im etablierten Gewerbegebiet "Paesch" in Longuich, einem wirtschaftlich starken und verkehrsgünstig gelegenen Ort an der Mittelmosel im Landkreis Trier-Saarburg. Die Gemeinde Longuich liegt nur etwa 12 Kilometer östlich von Trier und ist über die Autobahn A1/A602...
Die Ladenfläche
Kategorie
Verkaufsfläche
Baujahr
1998
Bezug
nach Absprache
Derzeitige Nutzung
vermietet
Energie & Heizung
Warum sehe ich diese Anzeige? – Du siehst diese Anzeige basierend auf Ihrer Navigation auf unserer Website und den Suchkriterien, die du verwendet hast.
Weitere Energiedaten
Energieträger
Öl
Heizungsart
Zentralheizung
Details
Objektbeschreibung
Zum Verkauf steht eine vielseitig nutzbare und gepflegte Gewerbehalle mit PV-Anlage im etablierten Gewerbegebiet "Paesch" in Longuich, unweit von Trier.
Die Immobilie befindet sich auf einem ca. 3.000?m² großen Grundstück und bietet eine funktionale Aufteilung, die sich ideal für Handels- oder Lagernutzungen...
Ausstattung
- Gewerbehalle im Paesch Longiuch mit PV-Anlage
- Grundstück 3.000 m²
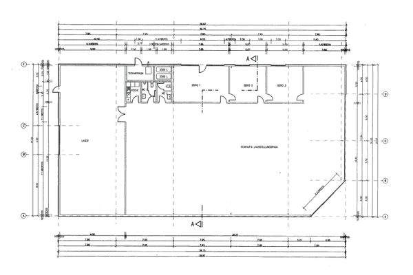
- Nutzfläche gesamt ca. 790 m²
- Traufhöhe 5 Meter
- Ausstellungsfläche mit ca. 490 m²
- Drei Büroräume mit ca. 100 m²
- Lagerfläche mit ca. 185 m²
- Toiletten D/H
- Teeküche
- Technikraum
- aktuell vermietet für 54.000 EUR p.a...
Preisinformation
Ist-Mieteinnahmen pro Jahr: 80.000,00 EUR
Weitere Informationen
Sonstiges
HAFTUNGSAUSSCHLUSS:
Alle Angaben und Informationen in diesem Exposé zum Objekt beruhen auf den Angaben des Eigentümers beziehungsweise Dritter. Für deren Richtigkeit, Vollständigkeit und Aktualität übernehmen wir daher keine Haftung. Irrtümer, Zwischenverkauf oder Vermietung bleiben vorbehalten. Auch weisen...
Anbieter der Immobilie

Online-ID: 2nh425b
Referenznummer: 8333
Finde Angebote wie dieses
Hier geht es zu unserem Impressum, den Allgemeinen Geschäftsbedingungen, den Hinweisen zum Datenschutz und nutzungsbasierter Online-Werbung.