
Evernest GmbH
Jonas Rendler
+49 ···
Nr. anzeigenPreise & Kosten
Provision für Käufer
7.14 inkl. MwSt.
Bei Abschluss eines notariellen Kaufvertrages ist eine Käuferprovision vom Käufer in Höhe von 7.14 % inkl. MwSt. aus dem Kaufpreis fällig.
Abschreibung/Anlage
Denkmalschutz-Afa
Lage
Das denkmalgeschützte Wohn- und Geschäftshaus liegt in der Europastadt Görlitz. Mit seinen 57.600 Einwohnern und über 4000 denkmalgeschützten Objekten zählt die seit 2010 umgewidmete Kulturhauptstadt als das größte zusammenhängende Denkmalgebiet Deutschlands.
Während der Industrialisierung im 19. Jahrhundert erlebte...
Das Haus
Kategorie
Mehrfamilienhaus
Baujahr
1896
Energie & Heizung
Warum sehe ich diese Anzeige? – Du siehst diese Anzeige basierend auf Ihrer Navigation auf unserer Website und den Suchkriterien, die du verwendet hast.
Energieausweis: für diesen Gebäudetyp nicht notwendig
Weitere Energiedaten
Energieträger
Gas
Details
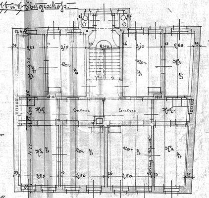
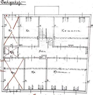
Objektbeschreibung
Das angebotene Wohn- und Geschäftshaus ist ein gepflegtes Gründerzeitanwesen aus dem Jahr 1896 und befindet sich in attraktiver Lage am Rande der Altstadt, unweit der Peterskirche. Die zentrale und zugleich ruhige Umgebung unterstreicht die nachhaltige Vermietbarkeit des Objekts.
Auf einer vermietbaren Gesamtfläche von...
Ausstattung
2022 teilweise sanierte Bäder, teilweise neue Fenster 2003, Stuckverzierungen, Buntglasfenster
Weitere Informationen
Stichworte
Anzahl der Schlafzimmer: 17, Anzahl der Badezimmer: 15, 4 Etagen
Anbieter der Immobilie
Online-ID: 2ngzl5n
Referenznummer: L-Z9MC8BF
Finde Angebote wie dieses
Hier geht es zu unserem Impressum, den Allgemeinen Geschäftsbedingungen, den Hinweisen zum Datenschutz und nutzungsbasierter Online-Werbung.