
Evernest GmbH
Nicolai Röhler
+49 ···
Nr. anzeigenPreise & Kosten
Provision für Käufer
3.57 inkl. MwSt.
Bei Abschluss eines notariellen Kaufvertrages ist eine Käuferprovision vom Käufer in Höhe von 3.57 % inkl. MwSt. aus dem Kaufpreis fällig.
Lage
Der Inselpark in Wilhelmsburg ist vor allem durch den öffentlichen Nahverkehr sehr gut erreichbar. Die S-Bahn-Station "Wilhelmsburg" (Linie S3 & S5) sorgt für eine direkte Anbindung an das Hamburger Stadtzentrum und andere wichtige Stadtteile. Mehrere Buslinien ergänzen die Anbindung und machen den Park für Pendler und...
Das Haus
Kategorie
Reihenmittelhaus
Baujahr
2013
Energie & Heizung
Warum sehe ich diese Anzeige? – Du siehst diese Anzeige basierend auf Ihrer Navigation auf unserer Website und den Suchkriterien, die du verwendet hast.
Energieausweistyp
Verbrauchsausweis
Gebäudetyp
Wohngebäude
Effizienzklasse
A+
Endenergieverbrauch
17,00 kWh/(m²·a) - Warmwasser enthalten
Weitere Energiedaten
Energieträger
Elektro
Details
Objektbeschreibung
Das Soft House im Inselpark Wilhelmsburg ist ein Symbol für die Zukunft des Wohnens. Mit seiner warmen Holzrahmenkonstruktion und den eleganten, textil integrierten Photovoltaikmodulen vereint es auf beeindruckende Weise Nachhaltigkeit und modernes Design. Hier wird Wohnen neu gedacht: flexibel, energieeffizient und ganz nah...
Ausstattung
- Nachhaltiges Energiekonzept
- Intelligente Photovoltaikanlage
- Nachhaltige Wärmedämmung
- Adaptives Heiz- und Kühlsystem
- Flexible Raumgestaltung
- Schalldämpfende, behagliche Holz Wände & Decken
- Hochwertige Materialien
- Zeitlose Bäder
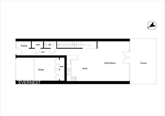
- Integrierte Garage
- Energieeffizienzklasse A+
Weitere Informationen
Stichworte
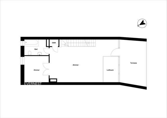
Parkhaus vorhanden, Nutzfläche: 20,00 m², Anzahl der Badezimmer: 2, Anzahl der separaten WCs: 1, Anzahl Terrassen: 1, Balkon-Terrassen-Fläche: 42,00 m², 3 Etagen
Anbieter der Immobilie
Online-ID: 2ngz25x
Referenznummer: L-KF6KW6G
Finde Angebote wie dieses
Hier geht es zu unserem Impressum, den Allgemeinen Geschäftsbedingungen, den Hinweisen zum Datenschutz und nutzungsbasierter Online-Werbung.