

EDE INVEST GmbH & Co. KG
Frau Chiara Mauz
+49 ···
Nr. anzeigenPreise & Kosten
Provision für Käufer
3,57 % inkl. MwSt. (3,00 % netto) inkl. MwSt.
Lage
Die Wohnung befindet sich im Münchner Stadtbezirk Allach-Untermenzing - einer der beliebtesten Wohnlagen im Nordwesten von München.
Die Riederstraße liegt im gewachsenen, überwiegend ruhigen Ortsteil Untermenzing und überzeugt durch ihren angenehm grünen, nachbarschaftlichen Charakter. Das Umfeld ist geprägt von gepflegten...
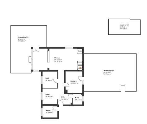
Die Wohnung
Wohnungslage
Erdgeschoss
Bezug
sofort
Wohnanlage
Energie & Heizung
Warum sehe ich diese Anzeige? – Du siehst diese Anzeige basierend auf Ihrer Navigation auf unserer Website und den Suchkriterien, die du verwendet hast.
Energieausweistyp
Verbrauchsausweis
Gebäudetyp
Wohngebäude
Baujahr laut Energieausweis
1991
Wesentliche Energieträger
OEL
Gültigkeit
bis 24.08.2033
Effizienzklasse
E
Endenergieverbrauch
152,60 kWh/(m²·a)
Weitere Energiedaten
Heizungsart
offener Kamin
Details
Objektbeschreibung
Diese stilvoll eingerichtete Erdgeschosswohnung liegt in einem gepflegten Dreifamilienhaus in ruhiger, grüner Wohnlage von München-Allach. Das Gebäude wurde 1966 errichtet und in den vergangenen Jahren umfassend modernisiert. Besonders hervorzuheben ist der außergewöhnlich große Garten mit eigenem Sondernutzungsrecht - ein...
Ausstattung
Die Wohnung kann komplett möbliert gekauft werden und ist sofort bezugsbereit. Sie bietet ein gepflegte Einrichtung sowie alle notwendigen Geräte und Ausstattungen - sowohl im Innen- als auch im Außenbereich.
Innenausstattung:
- Großzügiges Wohnzimmer mit Kamin und Zugang zum Wintergarten
- Wintergarten...
Preisinformation
1 Garagenstellplatz, Kaufpreis: 26.000,00 EUR
Weitere Informationen
Sonstiges
Alle in diesem Exposé verwendeten Angaben beruhen auf Informationen von Dritten (z.B. Eigentümer, Hausverwaltung, etc.) und daher freibleibend und ohne jegliche Gewähr. Zahlenangaben sind immer als ca-Angaben zu verstehen. Irrtum, Änderungen, Zwischenverkauf oder Zwischenvermietung bleiben vorbehalten. Die...
Dokumente
Anbieter der Immobilie
EDE INVEST GmbH & Co. KG
Bavariaring 18, 80336 München

Online-ID: 2ngxx5k
Referenznummer: 6715_1
Finde Angebote wie dieses
Hier geht es zu unserem Impressum, den Allgemeinen Geschäftsbedingungen, den Hinweisen zum Datenschutz und nutzungsbasierter Online-Werbung.