
Evernest GmbH
Philipp Becker
+49 ···
Nr. anzeigenPreise & Kosten
Provision für Käufer
2.97 inkl. MwSt.
Bei Abschluss eines notariellen Kaufvertrages ist eine Käuferprovision vom Käufer in Höhe von 2.97 % inkl. MwSt. aus dem Kaufpreis fällig.
Lage
Die Brunnengasse in Weinheim-Hohensachsen vereint das Beste aus zwei Welten: die idyllische Ruhe eines charmanten Bergstraßenortes mit der komfortablen Anbindung an die pulsierende Metropolregion Rhein-Neckar. Hier erleben Sie echte Lebensqualität in einer der begehrtesten Lagen der Region.
Umgeben von der malerischen...
Das Haus
Kategorie
Einfamilienhaus
Baujahr
1990
Energie & Heizung
Warum sehe ich diese Anzeige? – Du siehst diese Anzeige basierend auf Ihrer Navigation auf unserer Website und den Suchkriterien, die du verwendet hast.
Energieausweistyp
Bedarfsausweis
Gebäudetyp
Wohngebäude
Effizienzklasse
G
Endenergiebedarf
230,10 kWh/(m²·a)
Weitere Energiedaten
Energieträger
Elektro
Details
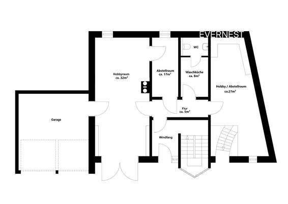
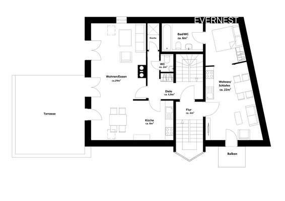
Objektbeschreibung
Sie lieben die Natur, schätzen Platz für Ihre Hobbys und träumen von einem großen Garten in ruhiger Lage? In Weinheim-Hohensachsen, unmittelbar an Feld und Weinbergen gelegen, finden Sie genau das: ein charmantes Einfamilienhaus mit Einliegerwohnung, das 1990 aus einer historischen Scheune entstand und bis heute seinen...
Ausstattung
- Einliegerwohnung
- Fußbodenheizung
- Zusätzlicher Holzofen
- Gewölbekeller
- Doppelgarage
Weitere Informationen
Stichworte
Garage vorhanden, Nutzfläche: 102,00 m², Anzahl der Schlafzimmer: 3, Anzahl der Badezimmer: 3, Anzahl der separaten WCs: 1, Anzahl Terrassen: 1, 3 Etagen
Anbieter der Immobilie
Online-ID: 2ngwx5s
Referenznummer: L-49YCXWE
Finde Angebote wie dieses
Hier geht es zu unserem Impressum, den Allgemeinen Geschäftsbedingungen, den Hinweisen zum Datenschutz und nutzungsbasierter Online-Werbung.