
FALC Immobilien Karlsdorf
Frau Claudia Hambrecht
+49 ···
Nr. anzeigenPreise & Kosten
Provision für Käufer
3,57% inkl. MwSt vom not. Kaufpreis
Abschreibung/Anlage
Denkmalschutz-Afa
Lage
Die Immobilie liegt in einem lebendigen Umfeld mit sehr guter Infrastruktur: Aldi, Rewe, Rossmann sowie mehrere Kindergärten sind bequem fußläufig erreichbar.
Auch gastronomisch bietet die Umgebung Besonderes: Die Hackerstuben im Wasserschloss Eichtersheim stehen für gehobene Küche, das Era Café ist bekannt für...
Das Haus
Kategorie
Mehrfamilienhaus
Baujahr
1790
Bezug
nach Absprache
Energie & Heizung
Warum sehe ich diese Anzeige? – Du siehst diese Anzeige basierend auf Ihrer Navigation auf unserer Website und den Suchkriterien, die du verwendet hast.
Weitere Energiedaten
Energieträger
Öl
Heizungsart
Zentralheizung
Details
Objektbeschreibung
Diese besondere Immobilie ist kein Objekt von der Stange, sondern ein gewachsenes Ensemble mit Geschichte, Charakter und Seele. Sie vereint eine denkmalgeschützte Synagoge aus dem Jahr 1790, ein Mehrfamilienhaus sowie ein individuelles Einfamilienhaus - jedes Gebäude mit eigener Identität und eigenem...
Ausstattung
- Massivbauweise
- Heizung mit Öl
- Laminat
- Fliesen
- Kellerraum
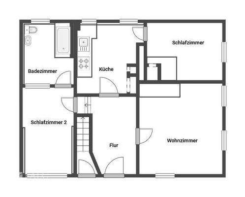
Einfamilenhaus:
- 5 Wohn- oder Schlafräume
- 2 Badezimmer
- 1 Gäste-WC
- 1 Küche
- 1 Wintergarten
- 1 Keller
ca. 130 qm Wohnfläche, ca. 54 qm Nutzfläche
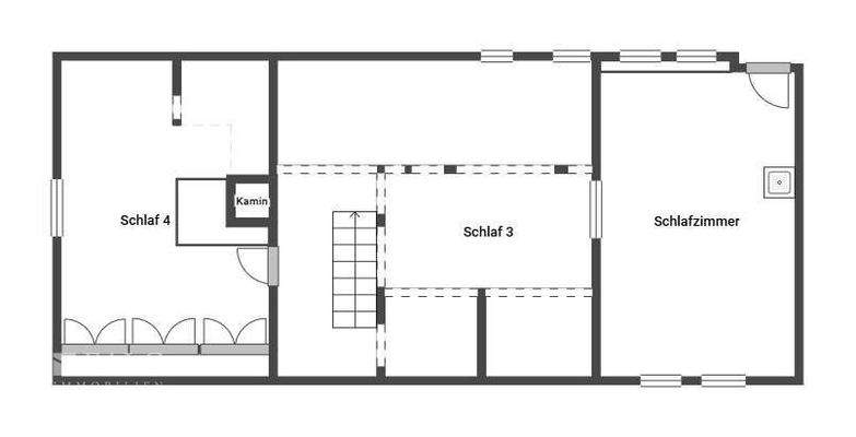
Synagoge (Denkmalschutz):
- Raumhöhe...
Preisinformation
1 Carportplatz
Weitere Informationen
Sonstiges
Wenn Sie Interesse an der Immobilie haben, fordern Sie gerne das ausführliche Exposé an, das Ihnen in der Regel kurzfristig und automatisch zugesandt wird. Sollten Sie eine Besichtigung wünschen, antworten Sie am besten direkt per E-Mail auf das Exposé. Wir setzen uns umgehend mit Ihnen in Verbindung und...
Anbieter der Immobilie
FALC Immobilien Karlsdorf
Prof.-A.-Riffel-Str. 9, 76689 Karlsdorf-Neuthard
Online-ID: 2ngwf57
Referenznummer: FALC-DH-68849
Finde Angebote wie dieses
Hier geht es zu unserem Impressum, den Allgemeinen Geschäftsbedingungen, den Hinweisen zum Datenschutz und nutzungsbasierter Online-Werbung.