
TWE-Immobilien Thomas Erthle e. K.
Frau Viola Pawelczyk
+49 ···
Nr. anzeigenPreise & Kosten
Provision für Käufer
3,57 % inkl. MwSt.
Abschreibung/Anlage
als Kapitalanlage geeignet
Lage
Das Objekt liegt in einem ruhigen und gewachsenen Wohngebiet von Gifhorn, das sich durch eine angenehme Nachbarschaft, viel Grün und eine gute Infrastruktur auszeichnet. Einkaufsmöglichkeiten, Schulen, Kindergärten, Ärzte sowie gastronomische Angebote sind in wenigen Minuten erreichbar. Die Innenstadt von Gifhorn ist sowohl...
Die Wohnung
Bezug
30.05.2026
Wohnanlage
Energie & Heizung
Warum sehe ich diese Anzeige? – Du siehst diese Anzeige basierend auf Ihrer Navigation auf unserer Website und den Suchkriterien, die du verwendet hast.
Energieausweistyp
Verbrauchsausweis
Gebäudetyp
Wohngebäude
Baujahr laut Energieausweis
2013
Wesentliche Energieträger
Gas
Gültigkeit
17.04.2018 bis 18.04.2028
Effizienzklasse
D
Endenergieverbrauch
99,00 kWh/(m²·a)
Weitere Energiedaten
Energieträger
Gas
Details
Objektbeschreibung
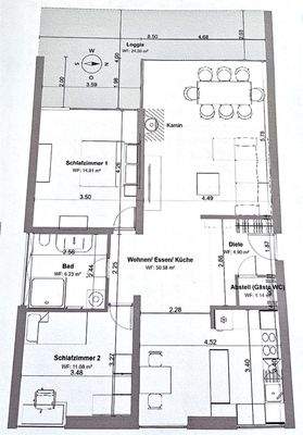
Diese hochwertig modernisierte 3-Zimmer-Eigentumswohnung in Gifhorn überzeugt durch ein durchdachtes Raumkonzept, zeitgemäßen Wohnkomfort und besondere Ausstattungsmerkmale. Die Wohnung befindet sich im 2. Obergeschoss eines massiv gebauten Mehrfamilienhauses aus dem Jahr 1986 und bietet auf ca. 97,3 m² Wohnfläche ein...
Ausstattung
- Ca. 97,3 m² Wohnfläche
- 3 Zimmer, davon 2 Schlafzimmer
- Großzügiger Wohn-/Essbereich
- Neu gemauerter Kamin mit Wärmespeicher (2020)
- Große Süd-West-Loggia (ca. 22,5 m² Nutzfläche)
- neu genachte Balkon Geländer
- Hochwertige Einbauküche inkl. Elektrogeräte
- Badezimmer mit ebenerdiger Dusche (2018...
Preisinformation
1 Garagenstellplatz
Weitere Informationen
Sonstiges
Gerne vereinbaren wir einen Besichtigungstermin mit Ihnen und freuen uns über Ihre Kontaktaufnahme.
Um eine schnelle Bearbeitung zu gewährleisten, übermitteln Sie uns bitte Ihre vollständigen Kontaktdaten mit Telefon-Nr. und E-Mail-Adresse.
Wir vermitteln - mit...
Anbieter der Immobilie
Online-ID: 2ngwb5e
Referenznummer: 3705 (1/3705)
Finde Angebote wie dieses
Hier geht es zu unserem Impressum, den Allgemeinen Geschäftsbedingungen, den Hinweisen zum Datenschutz und nutzungsbasierter Online-Werbung.