IMMOPARTNER-Ortenau

Herr Dietmar Roth

Vielseitige Produktions/Gewerbehalle in Haslach - 2611m² - Top Anbindung!

auf Anfrage
Nettomiete
2 611 m²
Fläche ca.
ab 460 m²
Teilbare Fläche ca.
k.A.
Grundstücksfl.

Der Anbieter dieses Objekts hat gegenüber der AVIV Germany GmbH als Betreiber dieses Online-Marktplatzes erklärt, nicht als Unternehmer im Sinne des § 1 KSchG zu handeln. Die im Verbraucherschutzrecht der Union verankerten Verbraucherrechte (insbesondere Informationspflichten und Rücktritts- bzw. Widerrufsrechte) finden auf den Vertrag zwischen dem Anbieter des Objekts und Ihnen (dem Interessenten) keine Anwendung.

Gewerblicher Anbieter

Der Anbieter dieses Objekts hat gegenüber der AVIV Germany GmbH als Betreiber dieses Online-Marktplatzes erklärt, als Unternehmer im Sinne des § 1 KSchG zu handeln.

AdresseStraße nicht freigegeben
77716 Haslach i.K. 
Auf Karte ansehen

Preise & Kosten

Nettomiete auf Anfrage 40 Stellplätze, je € 20

Kaution

2 Monatskaltmieten

Provision für Mieter

1,78 KM inkl. 19% MwSt.

Lage

Haslach im Kinzigtal ist eine Kleinstadt mit gut 7000 Einwohnern im Schwarzwald.

Haslach liegt etwa 27 Kilometer südöstlich von Offenburg und 38 Kilometer nordöstlich von Freiburg im Breisgau.

Hervorragende Sichtbarkeit und optimale Erreichbarkeit zeichnen diese Immobilie direkt an der Bundesstraße aus...

Mehr anzeigen

Die Industriefläche

Kategorie

Lagerhalle

Bezug

nach Absprache

  • Zustand: renoviert / saniert
  • 40 Stellplätze
  • Lastenaufzug

Energie & Heizung

Wärme

0 100 200 300 400 500 600 700 800 900 1000 +

Strom

0 100 200 300 400 500 600 700 800 900 1000 +

Energieausweistyp

Bedarfsausweis

Gebäudetyp

Nicht-Wohngebäude

Gültigkeit

06.11.2025 bis 06.11.2035

Endenergiebedarf (Wärme)

234,40 kWh/(m²·a)

Endenergiebedarf (Strom)

32,10 kWh/(m²·a)

Details

Objektbeschreibung

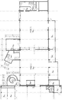
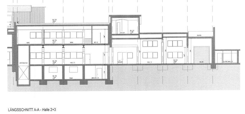
Die Liegenschaft besteht aus drei separaten Gewerbehallen mit Produktionsflächen im Erdgeschoss und Büroräumen im Obergeschoss.

Sie befindet sich in zentraler Lage direkt an der Bundesstraße.

Auf dem Parkdeck über der Halle befinden sich 36 Stellplätze für Mitarbeiter.

Die Haupthalle ist mit zwei...

Mehr anzeigen

Preisinformation

40 Stellplätze, Miete je: 20,00 EUR

Weitere Informationen

Sonstiges
Für weitere Informationen sowie einen unverbindlichen Besichtigungstermin stehen wir Ihnen gerne zur Verfügung.

Wir freuen uns auf Ihre Kontaktaufnahme!

Stichworte
Stellplatz vorhanden, Lagerfläche: 2.611,00 m², Gesamtfläche: 2.611,00 m², Lage im Gewerbegebiet

Dokumente

file_pdfEA_0003DE~1_Energieausweis-BW-2025-006051579angle_right

Anbieter der Immobilie

Partner

IMMOPARTNER-Ortenau

im Durchschnitt  4,20  Sterne
(bei 22 Bewertungen)

Hauptstr. 49, 77716 Haslach i.K.

user

Herr Dietmar Roth

Dein Ansprechpartner

Anbieter-Website Anbieter-Profil Anbieter-Impressum

Online-ID: 2ngvl5x

Referenznummer: 1125#qGdxQ

Finde Angebote wie dieses

imageimageimage

Hier geht es zu unserem Impressum, den Allgemeinen Geschäftsbedingungen, den Hinweisen zum Datenschutz und nutzungsbasierter Online-Werbung.