
iad Deutschland GmbH
Herr Ümit YÜCEL
004 ···
Nr. anzeigenPreise & Kosten
Provision für Käufer
4,76 % inkl MwSt inkl. MwSt.
Lage
Das charmante Mehrfamilienhaus befindet sich in bester Lage der Kernstadt 56477 Rennerod. Die Immobilie liegt nur wenige Gehminuten vom belebten Stadtzentrum entfernt, was Ihnen kurze Wege zu allen wichtigen Einrichtungen und Freizeiteinrichtungen ermöglicht. Für Familien besonders attraktiv: Ein Kindergarten und eine...
Das Haus
Kategorie
Mehrfamilienhaus
Baujahr
1957
Derzeitige Nutzung
vermietet
Energie & Heizung
Warum sehe ich diese Anzeige? – Du siehst diese Anzeige basierend auf Ihrer Navigation auf unserer Website und den Suchkriterien, die du verwendet hast.
Energieausweistyp
Bedarfsausweis
Gebäudetyp
Wohngebäude
Baujahr laut Energieausweis
1957
Wesentliche Energieträger
GAS
Gültigkeit
bis 21.03.2034
Effizienzklasse
H
Endenergiebedarf
433,00 kWh/(m²·a)
Weitere Energiedaten
Energieträger
Gas
Heizungsart
offener Kamin, Zentralheizung
Details
Objektbeschreibung
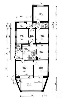
Zum Verkauf steht ein gepflegtes Haus mit drei Wohneinheiten. Eine Einheit ist vermietet, die beiden weiteren Wohnungen werden aktuell selbst bewohnt, können jedoch ebenfalls sehr gut vermietet werden - ideal sowohl für Kapitalanleger als auch für Käufer, die Wohnen und vermieten kombinieren möchten.
Das Obergeschoss...
Ausstattung
'Kabel Sat TV': Ja
Kamin: Ja
Terrasse: Ja
Balkon: Ja
Unterkellert: Ja
Heizungsart:
- Zentralheizung
Befeuerung:
- Gas
Preisinformation
1 Garagenstellplatz
2 Stellplätze
Weitere Informationen
Sonstiges
Rechtliche Hinweise: An den Kunden durch uns weitergeleitete Angaben und Informationen zu Objekten liegen die uns erteilten Auskünfte des Veräußerers bzw. Vermieters zugrunde. Die I@D Deutschland GmbH hat diese Angaben nicht geprüft. Vielmehr obliegt die Prüfung der Richtigkeit und/oder Vollständigkeit der...
Anbieter der Immobilie
iad Deutschland GmbH
Schleusenstraße 15-17, 60327 Frankfurt am Main
Online-ID: 2ngvk54
Referenznummer: iad-877
Finde Angebote wie dieses
Hier geht es zu unserem Impressum, den Allgemeinen Geschäftsbedingungen, den Hinweisen zum Datenschutz und nutzungsbasierter Online-Werbung.