
Wöhrmann Immobilien GmbH
Herr Peter Wöhrmann
004 ···
Nr. anzeigenPreise & Kosten
zzgl. Nebenkosten
Warum sehe ich diese Anzeige? – Du siehst diese Anzeige basierend auf Ihrer Navigation auf unserer Website und den Suchkriterien, die du verwendet hast.
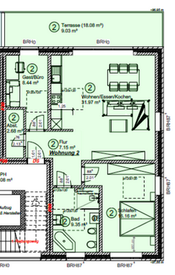
Die Wohnung
Bezug
sofort
Details
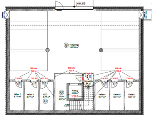
Objektbeschreibung
Es kommt eine traumhaftschöne, neuwertige 3 ZKB ab sofort zur Vermietung. Die Wohnung wurde in 2022 neu in Osnabrück-Pye erstellt. Die barrierefreie EG-Wohnung verfügt in allen Räumen über eine Fußbodenheizung, Fenster mit dreifach Verglasung, elektr. Rollläden und einem extrem großen Balkon mit Blick auf Osnabrück. Im...
Weitere Informationen
Stichworte
Anzahl der Schlafzimmer: 2, Anzahl der Badezimmer: 1, Bundesland: Niedersachsen
Anbieter der Immobilie
Wöhrmann Immobilien GmbH
Rüschendorfer Str. 13, 49401 Damme
Online-ID: 2ngvh5h
Referenznummer: 3292926180
Finde Angebote wie dieses
Hier geht es zu unserem Impressum, den Allgemeinen Geschäftsbedingungen, den Hinweisen zum Datenschutz und nutzungsbasierter Online-Werbung.