
ohne-makler.net - Immobilien selbst vermarkten
Privat von Sebastian Köller
Kontaktiere den Anbieter schriftlich, es ist keine Telefonnummer hinterlegt.
Preise & Kosten
Provision für Käufer
provisionsfrei
Lage
Dein Lieblingsplatz am Tarpenbeker Ufer - Hamburg-Groß Borstel
Entdecken Sie Ihre neue, ruhige Wohnlage direkt am neu gestalteten Quartierspark und an der Tarpenbek in Hamburg-Groß Borstel.
Nur wenige Schritte entfernt befindet sich das idyllische Eppendorfer Moor - eine rund 26 Hektar große Natur-Oase mit Wald-...
Die Wohnung
Wohnungslage
1. Geschoss
Bezug
15.07.2026
Wohnanlage
Energie & Heizung
Warum sehe ich diese Anzeige? – Du siehst diese Anzeige basierend auf Ihrer Navigation auf unserer Website und den Suchkriterien, die du verwendet hast.
Energieausweistyp
Bedarfsausweis
Gebäudetyp
Wohngebäude
Effizienzklasse
B
Endenergiebedarf
60,00 kWh/(m²·a)
Weitere Energiedaten
Energieträger
Fernwärme
Heizungsart
Zentralheizung
Details
Objektbeschreibung
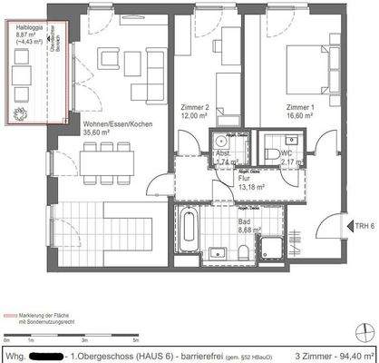
Diese stilvolle, hochwertig ausgestattete und helle 3-Zimmer-Eigentumswohnung mit großzügigen 94,40 m² Wohnfläche befindet sich im 1. Obergeschoss der beliebten Wohnanlage "Dein Lieblingsplatz am Tarpenbeker Ufer" (Baufeld 7), fertiggestellt 2019, Erstbezug Februar 2020.
Die Wohnung überzeugt durch eine moderne...
Ausstattung
Balkon, Keller, Fahrstuhl, Vollbad, Einbauküche, Gäste-WC, Barrierefrei, Parkett, Fliesen, Sonstiges (s. Text)
Bemerkungen:
Hochwertige Otto-Wulff-Neubauqualität - nachhaltig, modern und wertbeständig
Qualitätsvoll geplant und ausgeführt vom renommierten Bauträger Otto Wulff: Sämtliche Ausstattungsmerkmale...
Preisinformation
1 Tiefgaragenstellplatz, Kaufpreis: 35.000,00 EUR
Weitere Informationen
Sonstiges
Heizungsart: Zentralheizung
Energieträger: Fernwärme
Die Wohnung befindet sich seit Fertigstellung 2019 in einem sehr gepflegten Zustand. Die Wohnanlage ist inzwischen eingewachsen und etabliert - ein stilvolles Zuhause in ruhiger, grüner Umgebung mit nachhaltiger Bauqualität.
Die Wohnung wird...
Dokumente
Anbieter der Immobilie
ohne-makler.net - Immobilien selbst vermarkten
Humboldtstr. 25 A, 21509 Glinde
Privat von Sebastian Köller
Dein Ansprechpartner
Kontaktiere den Anbieter schriftlich, es ist keine Telefonnummer hinterlegt.
Online-ID: 2ngrb5m
Referenznummer: 430801
Finde Angebote wie dieses
Hier geht es zu unserem Impressum, den Allgemeinen Geschäftsbedingungen, den Hinweisen zum Datenschutz und nutzungsbasierter Online-Werbung.