
ohne-makler.net - Immobilien selbst vermarkten
Privat vom Eigentümer
Kontaktiere den Anbieter schriftlich, es ist keine Telefonnummer hinterlegt.
Preise & Kosten
Provision für Käufer
provisionsfrei
Lage
Die Gemeinde Adelsdorf mit rund 10.000 Einwohnern verbindet historischen Charme mit einer zeitgemäßen Infrastruktur. Der malerische Ortskern mit Schloss und Schlossgarten prägt das Erscheinungsbild ebenso wie die in den vergangenen Jahrzehnten stetig gewachsene Bevölkerung.
Durch die hervorragende Verkehrsanbindung...
Das Haus
Kategorie
Reihenmittelhaus
Baujahr
2018
Bezug
nach Absprache
Energie & Heizung
Warum sehe ich diese Anzeige? – Du siehst diese Anzeige basierend auf Ihrer Navigation auf unserer Website und den Suchkriterien, die du verwendet hast.
Energieausweistyp
Bedarfsausweis
Gebäudetyp
Wohngebäude
Effizienzklasse
A
Endenergiebedarf
31,00 kWh/(m²·a)
Weitere Energiedaten
Energieträger
Gas
Heizungsart
Fußbodenheizung
Details
Objektbeschreibung
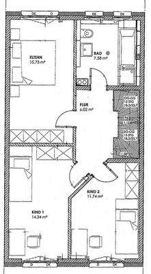
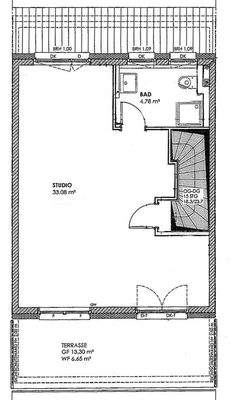
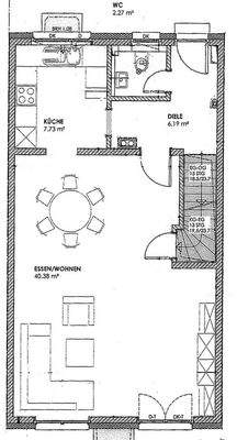
Dieses hochwertig ausgestattete Reihenhaus (Bj. 2018) überzeugt mit einem durchdachten Grundriss, großzügigen 163 m² Wohnfläche sowie zusätzlichen 56 m² Keller - ideal für Familien mit gehobenem Anspruch, die ein bezugsfertiges, modernes Zuhause mit Stil und Komfort suchen.
Die Lage am Eingang der Siedlung bietet kurze...
Ausstattung
Terrasse, Garten, Keller, Dachterrasse, Vollbad, Duschbad, Einbauküche, Gäste-WC, Laminat, Fliesen
Preisinformation
2 Stellplätze
Weitere Informationen
Sonstiges
Heizungsart: Fußbodenheizung
Energieträger: Gas
Stellplätze: 2
Verfügbar ab: nach Absprache
Objektzustand: neuwertig
Qualität der Ausstattung: Gehoben
Bodenbelag: Fliesen, Laminat
Makleranfragen nicht erwünscht. Nach § 7 UWG sind unaufgeforderte Kontaktaufnahmen durch Makler ohne...
Anbieter der Immobilie
ohne-makler.net - Immobilien selbst vermarkten
Humboldtstr. 25 A, 21509 Glinde
Privat vom Eigentümer
Dein Ansprechpartner
Kontaktiere den Anbieter schriftlich, es ist keine Telefonnummer hinterlegt.
Online-ID: 2ngqp5y
Referenznummer: 427914
Finde Angebote wie dieses
Hier geht es zu unserem Impressum, den Allgemeinen Geschäftsbedingungen, den Hinweisen zum Datenschutz und nutzungsbasierter Online-Werbung.