
Danhaus - Paulo Granja Handelsvertretung für die Danhaus Deutschland GmbH
Paulo Granja
+49 ···
Nr. anzeigenPreise & Kosten
Provision für Käufer
provisionsfrei
Lage
Für unsere DANHAUS-Kunden bieten wir einen kostenlosen Grundstücksservice an, damit Sie schnell und unkompliziert Ihr passendes Baugrundstück finden. www.grundstuecksdetektiv.de - Sprechen Sie mit uns - wir beraten Sie gerne in einem persönlichen Termin.
Das Haus
Kategorie
Mehrfamilienhaus
Energie & Heizung
Warum sehe ich diese Anzeige? – Du siehst diese Anzeige basierend auf Ihrer Navigation auf unserer Website und den Suchkriterien, die du verwendet hast.
Weitere Energiedaten
Heizungsart
Fußbodenheizung
Details
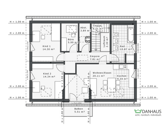
Objektbeschreibung
Wohnen auf lange Sicht! Dieses Generationenhaus bietet flexible Nutzungsmöglichkeiten - von der Großfamilie bis hin zur Vermietung einzelner Einheiten. Gestalten Sie Ihr Eigenheim nach Ihren Wünschen und profitieren Sie von moderner Architektur und energieeffizienter Bauweise. Kontaktieren Sie uns für eine unverbindliche...
Ausstattung
Individuell geplant und technik-fertig - Ihr Danhaus nach Maß!
Jedes unserer Fertighäuser wird individuell auf Ihr Grundstück, den Bebauungsplan und Ihre Wünsche abgestimmt. Die beliebte Danhaus-Ausbaustufe technik-fertig ist dabei die ideale Basis - mit vielen Extras inklusive:
-Massive Klinkerfassade im...
Weitere Informationen
Sonstiges
Verwirklichen Sie Ihren Traum vom eigenen Zuhause - sorgenfrei und entspannt.
Mit uns bauen Sie nicht nur ein Haus, sondern Ihr persönliches Wohlfühlparadies. Wir bieten Ihnen alles aus einer Hand: von der umfassenden Budgetplanung über die individuelle Hausplanung bis hin zur schlüsselfertigen...
Anbieter der Immobilie
Danhaus - Paulo Granja Handelsvertretung für die Danhaus Deutschland GmbH
Porschestraße 10, 41564 Kaarst
Online-ID: 2ngqb5t
Referenznummer: DH-US-52316-Pulheim
Finde Angebote wie dieses
Hier geht es zu unserem Impressum, den Allgemeinen Geschäftsbedingungen, den Hinweisen zum Datenschutz und nutzungsbasierter Online-Werbung.