

Norbert Schaller Immobilien
Frau Gisela Löwe
091 ···
Nr. anzeigenPreise & Kosten
Kaution
2.685,00
Warum sehe ich diese Anzeige? – Du siehst diese Anzeige basierend auf Ihrer Navigation auf unserer Website und den Suchkriterien, die du verwendet hast.
Lage
Das Objekt befindet sich in schöner Citylage nahe der Nürnberger Burg. Direkte U-Bahnanbindung vor der Haustüre. Schnelle Anbindung zum Hauptbahnhof, zum Hauptmarkt sowie zur Autobahn. Ebenso ist die Innenstadt von Nürnberg bequem in 20 Minuten zu Fuß erreichbar.
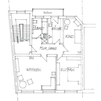
Die Wohnung
Wohnungslage
3. Geschoss
Bezug
* Frei ab 01. Mai
Wohnanlage
Energie & Heizung
Warum sehe ich diese Anzeige? – Du siehst diese Anzeige basierend auf Ihrer Navigation auf unserer Website und den Suchkriterien, die du verwendet hast.
Energieausweistyp
Bedarfsausweis
Gebäudetyp
Wohngebäude
Wesentliche Energieträger
Gas
Gültigkeit
bis 05.03.2036
Effizienzklasse
E
Endenergiebedarf
146,90 kWh/(m²·a)
Weitere Energiedaten
Energieträger
Gas
Heizungsart
Etagenheizung
Details
Objektbeschreibung
* Moderne, im Jahr 2018 kernsanierte 3-Zimmer Wohnung
* Weiße Kunststoffisolierglasfenster mit Außenrollos
* Weiße Innentüren
* Hochwertiger Parkettboden in allen Wohnräumen
* Tageslichtbad mit Wanne und WC, raumhoch in zeitlosem Stil gefliest
* Küche mit Zugang zum Küchenbalkon in den ruhigen Innenhof
*...
Weitere Informationen
Etage
* 3. OG ohne Aufzug
Stellplatz
* Anwohnerparkausweis über Stadt Nürnberg möglich
Hinweis
NORBERT SCHALLER IMMOBILIEN
Deutschherrnstr. 47
90 429 Nürnberg
Telefon: 09 11 - 9 94 37 23
Internet: www.schaller-immobilien.de
E-mail: info@schaller-immobilien.de
Bitte...
Anbieter der Immobilie

Online-ID: 2ngps5y
Referenznummer: A3451
Finde Angebote wie dieses
Hier geht es zu unserem Impressum, den Allgemeinen Geschäftsbedingungen, den Hinweisen zum Datenschutz und nutzungsbasierter Online-Werbung.