
PIPPING Immobilien GmbH & Co. KG
Herr Mika Leon Beyer
+49 ···
Nr. anzeigenPreise & Kosten
Provision für Käufer
3,125 % inkl. USt.
Lage
Hamburg Moorfleet ist eine ruhige und familienfreundliche Wohngegend am südlichen Stadtrand von Hamburg. Die Lage zeichnet sich durch eine angenehme Mischung aus grünen Flächen, gepflegten Einfamilienhäusern und einer ruhigen Nachbarschaft aus. Die ruhige Lage bietet somit die perfekte Balance zwischen naturnaher Umgebung und...
Das Haus
Kategorie
Einfamilienhaus
Baujahr
1986
Energie & Heizung
Warum sehe ich diese Anzeige? – Du siehst diese Anzeige basierend auf Ihrer Navigation auf unserer Website und den Suchkriterien, die du verwendet hast.
Energieausweistyp
Bedarfsausweis
Gebäudetyp
Wohngebäude
Baujahr laut Energieausweis
1995
Wesentliche Energieträger
Gas
Gültigkeit
bis 15.07.2035
Effizienzklasse
F
Endenergiebedarf
176,20 kWh/(m²·a)
Weitere Energiedaten
Energieträger
Gas
Details
Objektbeschreibung
Bei der hier angebotenen Immobilie handelt es sich um ein Einfamilienhaus, welches im Jahre 1986 in massiver Bauweise auf Holzrammpfählen auf einem Erbbaugrundstück errichtet wurde.
Die Beheizung sowie die Warmwasserversorgung erfolgen über eine Gaszentralheizung der Firma Junkers aus dem Jahre 1995.
Von außen...
Ausstattung
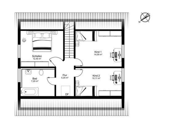
Beim Betreten der Immobilie werden Sie von einer großzügigen Diele in Empfang genommen, an deren Anfang sowie Ende bodentiefe Fensterfronten für eine einladende Atmosphäre sorgen.
Linker Hand, am Ende der Diele, eröffnet sich Ihnen der großzügige, lichterfüllte Wohnbereich. Ein charmanter Kamin sorgt für wohlige Wärme...
Weitere Informationen
Sonstiges
Das Erbbaurecht umfasst eine äußerst gepflegte Grundstücksfläche von ca. 679 m² und ist blickdicht eingewachsen.
Eingebettet in einer grünen Wohlfühloase lassen sich hier entspannte Stunden im Freien verbringen.
Sie erreichen das Grundstück über eine gepflasterte Zufahrt mit anschließender Zuwegung...
Anbieter der Immobilie
PIPPING Immobilien GmbH & Co. KG
Bahnhofstr. 12, 21465 Reinbek
Online-ID: 2ngpr5h
Referenznummer: MBE-258612394
Finde Angebote wie dieses
Hier geht es zu unserem Impressum, den Allgemeinen Geschäftsbedingungen, den Hinweisen zum Datenschutz und nutzungsbasierter Online-Werbung.