
IMCO Immobilien Consulting GmbH
Frau Sarah Waitz
080 ···
Nr. anzeigenPreise & Kosten
Provision für Käufer
provisionsfrei
Lage
Makrolage:
Bad Aibling - Kurstadt mit hoher Lebensqualität, gute Anbindung an Rosenheim, München und die Alpenregion.
Bahnhof Bad Aibling: ca. 1,2 km (15 Min zu Fuß, 5 Min. mit dem Fahrrad, 3 Min. mit dem Auto)
Autobahn A8 (Anschlussstelle Bad Aibling): ca. 6 km (ca. 8 Min. mit dem Auto)
Flughafen München: ca. 85...
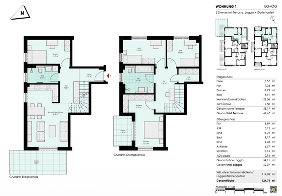
Die Wohnung
Wohnungslage
Erdgeschoss
Wohnanlage
Energie & Heizung
Warum sehe ich diese Anzeige? – Du siehst diese Anzeige basierend auf Ihrer Navigation auf unserer Website und den Suchkriterien, die du verwendet hast.
Energieausweistyp
Verbrauchsausweis
Gebäudetyp
Wohngebäude
Wesentliche Energieträger
Strom
Gültigkeit
16.10.2023 bis 21.01.2036
Endenergieverbrauch
14,50 kWh/(m²·a)
Weitere Energiedaten
Energieträger
Elektro
Haustyp
KfW 40
Heizungsart
Fußbodenheizung, Luft-/Wasser-Wärmepumpe
Details
Objektbeschreibung
Zum Verkauf steht eine großzügige 5-Zimmer-Maisonettewohnung in einem Neubau-Mehrfamilienhaus im KfW-40-Standard mit insgesamt sechs Wohneinheiten.
Die Einheit erstreckt sich über das Erd- und Obergeschoss und bietet eine sonnige Terrasse mit Westausrichtung sowie eine Loggia im Obergeschoss. Ein besonderes Highlight...
Ausstattung
- Fußbodenheizung in allen Wohnräumen
- Waschmaschinenanschluss in der Wohnung
- Bad mit elektrischem Handtuchheizkörper und großzügiger, ebenerdiger Dusche
- Badewanne
- Loggia & Terrasse mit Gartenanteil zur alleinigen Nutzung
- Wärmepumpe
- Reichhaltige Auswahl an Fliesen- und Bodenbelägen
-...
Weitere Informationen
Sonstiges
Stellplatz normal: 12.000 €
Stellplatz in Überbreite: 14.500 €
Stellplatz im Carport: 27.000 €
Das Haus wird im KfW 40 Standard errichtet. Nutzen Sie Möglichkeit der Beantragung von Fördermitteln!
Stichworte
Carport vorhanden, Stellplatz vorhanden, Anzahl der Schlafzimmer: 4, Anzahl der...
Anbieter der Immobilie
IMCO Immobilien Consulting GmbH
Carl-Jordan-Str. 9, 83059 Kolbermoor
Online-ID: 2ngpk5v
Referenznummer: WE 1
Finde Angebote wie dieses
Hier geht es zu unserem Impressum, den Allgemeinen Geschäftsbedingungen, den Hinweisen zum Datenschutz und nutzungsbasierter Online-Werbung.