
PlaBeMa Immobilien GmbH & Co. KG
Frau Bärbel Woytaszek
004 ···
Nr. anzeigenPreise & Kosten
Provision für Käufer
7,14 %
Abschreibung/Anlage
Denkmalschutz-Afa
Lage
Dieses Mehrfamilienhaus liegt zentral, direkt am Markt in Parchim.
Parchim ist eine der ältesten Städte Mecklenburgs. Erstmalig 1170 als Burg Parchim und 1225/1226 als Stadt erwähnt, bietet Parchim heute diverse historische Bauten und Denkmäler.
Mit seinen ca. 18.000 Einwohnern ist Parchim die bevölkerungsreichste...
Das Renditeobjekt
Kategorie
Mehrfamilienhaus
Baujahr
1890
Energie & Heizung
Warum sehe ich diese Anzeige? – Du siehst diese Anzeige basierend auf Ihrer Navigation auf unserer Website und den Suchkriterien, die du verwendet hast.
Energieausweis: für diesen Gebäudetyp nicht notwendig
Weitere Energiedaten
Energieträger
Gas
Details
Objektbeschreibung
Das denkmalgeschütze Gebäude wurde ca. 1890 in massiver Bauweise errichtet und ist teilunterkellert.
Es verteilen sich ca. 528 m² Wohnfläche auf 3 Wohneinheiten (2-Zimmer-Wohnungen) und 14 Einzelapartments mit Dusch-Bad und gemeinschaftlichen Küchenbereichen.
Die Mietflächen variieren aktuell zwischen ca. 21,00 m² bis...
Ausstattung
Objektdetails und Ausstattungen:
- Laminat- und Fliesenfußböden
- Bäder mit Dusche
- Gas-Zentralheizung
- Holzfenster
- kleiner Innenhof für Fahrrad- und Mülltonnenabstellplatz
- 1 Garage innerhalb des Gebäudes
Weitere Informationen
Sonstiges
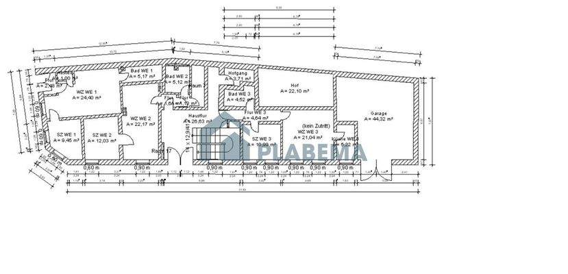
Soweit Grundrisse dargestellt sind, dienen sie der Orientierung und Darstellung. Eine Haftung für detailgetreue Darstellung schliessen wir aus. Maße sind am Bau zu prüfen.
Stichworte
vermietbare Fläche: 528,00 m², Anzahl der Wohneinheiten: 17, Flur: 58, Flurstück: 390/2, Gemarkung: Parchim, 3 Etagen
Anbieter der Immobilie
PlaBeMa Immobilien GmbH & Co. KG
Wismarsche Straße 147, 19053 Schwerin
Online-ID: 2ngm756
Referenznummer: CM-55
Finde Angebote wie dieses
Hier geht es zu unserem Impressum, den Allgemeinen Geschäftsbedingungen, den Hinweisen zum Datenschutz und nutzungsbasierter Online-Werbung.