
Antaris Immobilien GmbH
Herr André Voigt
+49 ···
Nr. anzeigenPreise & Kosten
Provision für Mieter
provisionsfrei
Warum sehe ich diese Anzeige? – Du siehst diese Anzeige basierend auf Ihrer Navigation auf unserer Website und den Suchkriterien, die du verwendet hast.
Lage
Die Querstraße in Chemnitz-Röhrsdorf befindet sich in einem etablierten Gewerbe- und Industriegebiet im Nordwesten der Stadt. Chemnitz selbst ist mit rund 245.000 Einwohnern das wirtschaftliche Zentrum von Südwestsachsen und ein bedeutender Standort für Handel, Produktion und Logistik. In unmittelbarer Nähe zum Objekt...
Büro-/Praxisfläche
Kategorie
Bürofläche
Baujahr
1995
Bezug
sofort
Energie & Heizung
Warum sehe ich diese Anzeige? – Du siehst diese Anzeige basierend auf Ihrer Navigation auf unserer Website und den Suchkriterien, die du verwendet hast.
Wärme
Strom
Energieausweistyp
Verbrauchsausweis
Gebäudetyp
Nicht-Wohngebäude
Baujahr laut Energieausweis
2023
Wesentliche Energieträger
Erdgas schwer
Gültigkeit
07.01.2026 bis 07.01.2036
Endenergieverbrauch (Wärme)
229,60 kWh/(m²·a)
Endenergieverbrauch (Strom)
27,40 kWh/(m²·a)
Details
Objektbeschreibung
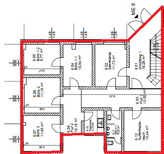
Die angebotene Büroeinheit umfasst ca. 263 m² und bietet insgesamt 13 Büroräume auf zwei Etagen.
Im Erdgeschoss befinden sich mehrere gut belichtete Räume sowie Sanitäranlagen. Die Räume unterscheiden sich in Größe und Zuschnitt und lassen sich flexibel für unterschiedliche Arbeitsfunktionen nutzen.
Über eine...
Weitere Informationen
Sonstiges
Widerrufsrecht
Sie können Ihre Vertragserklärung innerhalb von 14 Tagen ohne Angaben von Gründen in Textform (z.B. Brief, E-Mail) widerrufen. Die Frist beginnt nach Erhalt dieser Belehrung in Textform, jedoch nicht vor Vertragsabschluss und auch nicht vor Erfüllung unserer Informationspflichten gem. Art. 246 §...
Anbieter der Immobilie
Online-ID: 2ngm35v
Referenznummer: D24011/G1/G1/Eh2
Finde Angebote wie dieses
Hier geht es zu unserem Impressum, den Allgemeinen Geschäftsbedingungen, den Hinweisen zum Datenschutz und nutzungsbasierter Online-Werbung.