

KHC Bauträger GmbH
Frau Janet Schrepel
037 ···
Nr. anzeigenPreise & Kosten
Provision für Käufer
provisionsfrei
Lage
Das Grundstück befindet sich im chemnitzer Stadtteil Bernsdorf. In wenigen Gehminuten erreichen Sie das Zentrum von Chemnitz.
Der Preis versteht sich inklusive Grundstück und exklusive Baunebenkosten.
Wir planen jedes Kern-Haus frei & Individuell nach Ihren Wünschen und passen es in das Grundstück ein.
Das Haus
Kategorie
Einfamilienhaus
Baujahr
2026
Energie & Heizung
Warum sehe ich diese Anzeige? – Du siehst diese Anzeige basierend auf Ihrer Navigation auf unserer Website und den Suchkriterien, die du verwendet hast.
Energieausweistyp
Bedarfsausweis
Gebäudetyp
Wohngebäude
Baujahr laut Energieausweis
2026
Wesentliche Energieträger
Strom
Gültigkeit
seit 04.01.2016
Effizienzklasse
A+
Endenergiebedarf
20,01 kWh/(m²·a)
Weitere Energiedaten
Energieträger
Elektro
Heizungsart
Fußbodenheizung, Zentralheizung
Details
Objektbeschreibung
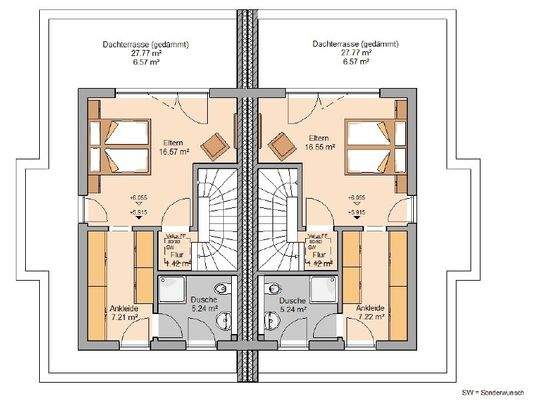
Das Kern-Haus Forneo überzeugt als Doppelhaus auf drei Etagen im Bauhaus-Stil! Perfekt wird das Haus durch die Dachterrasse, die für Ruhe und Entspannung im oft trubeligen Alltag sorgt.
Im Erdgeschoss befindet sich ein großzügiger Flur, der zum Gäste-WC und dem Hauswirtschaftsraum führt. Vorbei an einer Nische, die...
Ausstattung
5 Zimmer, Küche, Diele, WC, 2 Flure, Bad, Dusche, Ankleide, Hauswirtschaftsraum, Dachterrasse
Das gezeigte Traumhaus im Überblick:
+ Schlüsselfertiges Massivhaus im Sinne der Ausstattungsbeschreibung "Edition 25"
+ Zukunftsorientierte Energieausstattung in Form einer Luft-Wasser-Wärmepumpe und Fußbodenheizung...
Weitere Informationen
Sonstiges
Kern-Haus
Kern-Haus baut individuelle und massive Architektenhäuser zu einem attraktiven Preis-Leistungs-Verhältnis - und das bereits mit einer Erfahrung seit 1980. Bei Kern-Haus erhalten Sie unter anderem 10 Jahre Gewährleistung auf die wesentlichen Bauleistungen, bis zu 24 Monate Preissicherheit sowie...
Anbieter der Immobilie

Online-ID: 2nglv5b
Referenznummer: KH 34_01
Finde Angebote wie dieses
Hier geht es zu unserem Impressum, den Allgemeinen Geschäftsbedingungen, den Hinweisen zum Datenschutz und nutzungsbasierter Online-Werbung.