
Schmidbauer Immobilien Kreta
Herr Oskar Josef Schmidbauer
+49 ···
Nr. anzeigenPreise & Kosten
Provision für Käufer
3,72 % (inklusive MwSt.) vom Verkaufspreis
Lage
?? Kefalas - Traditionelles Bergdorf auf der Apokoronas-Halbinsel (PLZ 730 08)
Kefalas ist ein authentisches, traditionelles Dorf, das sich auf der Apokoronas-Halbinsel in der Präfektur Chania befindet. Mit seiner erhöhten Lage bietet das Dorf oft spektakuläre Ausblicke auf das Meer der Souda-Bucht und die umliegende...
Die Wohnung
Wohnanlage
Energie & Heizung
Warum sehe ich diese Anzeige? – Du siehst diese Anzeige basierend auf Ihrer Navigation auf unserer Website und den Suchkriterien, die du verwendet hast.
Energieausweistyp
Bedarfsausweis
Gebäudetyp
Wohngebäude
Baujahr laut Energieausweis
2026
Effizienzklasse
A
Details
Objektbeschreibung
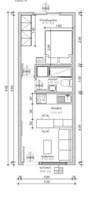
Die Apartments mit einer Wohnfläche von 25,80 m² (Innenmaß) bieten maximale Raumausnutzung und befinden sich auf einem 1.226 m² großen Meerblick-Grundstück.
Sie verfügen über einen offenen Wohn- und Küchenbereich, eine voll ausgestattete Küche mit Kühl-/Gefrierkombination, Backofen und Dunstabzugshaube. Das moderne...
Preisinformation
1 Stellplatz
Weitere Informationen
Sonstiges
Wir sind deutsche Immobilienmakler und haben uns spezialisiert auf Immobilien aus Kreta. Neben der Suche nach geeigneten Immobilien auf Kreta für Sie, gehört auch das Organisieren von Besichtigungsterminen auf Kreta zu unserem Portfolio.
Zu jeder Phase Ihres Immobilienerwerbs auf Kreta stehen wir Ihnen zur...
Anbieter der Immobilie
Online-ID: 2nglb5l
Referenznummer: MIT-100h
Finde Angebote wie dieses
Hier geht es zu unserem Impressum, den Allgemeinen Geschäftsbedingungen, den Hinweisen zum Datenschutz und nutzungsbasierter Online-Werbung.