

Holzner Immobilien GmbH
Frau Elvira Holzner
+49 ···
Nr. anzeigenPreise & Kosten
Provision für Käufer
3,57 %
Lage
Das Einfamilienhaus befindet sich in der beliebten Wolfgangsiedlung - einer gewachsenen, familienfreundlichen Wohnlage mit sehr guter Infrastruktur. Alle Einrichtungen des täglichen Bedarfs sind bequem erreichbar: Bäckerei, Apotheke, Supermärkte sowie eine Kinderarztpraxis liegen in unmittelbarer Nähe. Auch Grund-, Mittel-...
Das Haus
Kategorie
Einfamilienhaus
Baujahr
1995
Energie & Heizung
Warum sehe ich diese Anzeige? – Du siehst diese Anzeige basierend auf Ihrer Navigation auf unserer Website und den Suchkriterien, die du verwendet hast.
Energieausweistyp
Verbrauchsausweis
Gebäudetyp
Wohngebäude
Baujahr laut Energieausweis
2019
Wesentliche Energieträger
PELLET
Gültigkeit
bis 23.02.2036
Effizienzklasse
E
Endenergieverbrauch
138,23 kWh/(m²·a)
Weitere Energiedaten
Haustyp
Massivhaus
Details
Objektbeschreibung
In einer der begehrten Lagen der Wolfgangsiedlung präsentiert sich dieses freistehende Einfamilienhaus aus dem Baujahr 1995 auf einem Grundstück von rund 600 m². Gepflegt, einladend und bereit, neuen Ideen Raum zu geben. In zweiter Reihe gelegen, genießen Sie hier eine ruhige, geschützte Wohnatmosphäre - ideal für Familien...
Ausstattung
Freistehendes Einfamilienhaus
Baujahr 1995
Ziegelbauweise mit Satteldach
Grundstücksfläche ca. 600 m²
Teilweise Mansarde im Obergeschoss
Rollläden an allen Fenstern, teilweise elektrisch
Bodenbeläge: helle Fliesen und Korkboden
Sanitär:
Gäste WC, Badezimmer mit Dusche und...
Weitere Informationen
Sonstiges
- https://storage.googleapis.com/marton_prod_onoffice/video_files/1723ef2b12c63951ffe587280311fed4.mp4
Stichworte
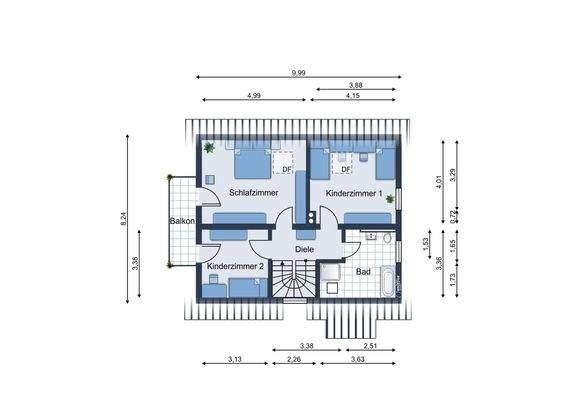
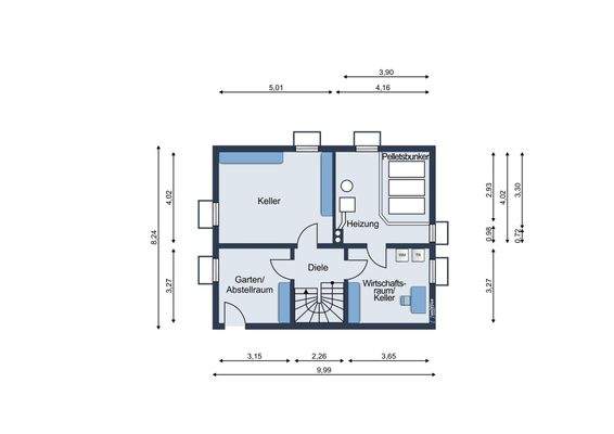
Anzahl der Schlafzimmer: 4, Anzahl der Badezimmer: 1, Anzahl der separaten WCs: 1, Anzahl Balkone: 1, Anzahl Terrassen: 1, 2 Etagen
Anbieter der Immobilie
Holzner Immobilien GmbH
Freyung 608, 84028 Landshut

Online-ID: 2ngl25q
Referenznummer: 2026697
Finde Angebote wie dieses
Hier geht es zu unserem Impressum, den Allgemeinen Geschäftsbedingungen, den Hinweisen zum Datenschutz und nutzungsbasierter Online-Werbung.