

Graf Wohnbau GmbH
Frau Martina Holder
+49 ···
Nr. anzeigenPreise & Kosten
Provision für Käufer
3,57 % inkl. MwSt
Lage
Die Immobilie befindet sich im Teilort Böblingen-Dagersheim, einer beliebten und ruhigen Wohngegend, die sich durch ihre familienfreundliche Atmosphäre auszeichnet. Die Umgebung ist geprägt von gepflegten Einfamilien- und Doppelhaushälften sowie viel Grün, was eine angenehme und entspannte Wohnatmosphäre schafft.
In...
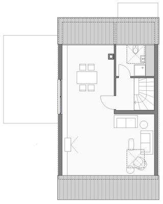
Das Haus
Kategorie
Doppelhaushälfte
Baujahr
1980
Bezug
01.08.2026
Energie & Heizung
Warum sehe ich diese Anzeige? – Du siehst diese Anzeige basierend auf Ihrer Navigation auf unserer Website und den Suchkriterien, die du verwendet hast.
Energieausweistyp
Bedarfsausweis
Gebäudetyp
Wohngebäude
Baujahr laut Energieausweis
1996
Gültigkeit
bis 20.05.2035
Effizienzklasse
D
Endenergiebedarf
119,76 kWh/(m²·a)
Weitere Energiedaten
Energieträger
Öl
Heizungsart
Zentralheizung
Details
Objektbeschreibung
Diese charmante Doppelhaushälfte aus dem Baujahr 1980 besticht durch ihre ruhige und begehrte Lage in Böblingen-Dagersheim. Das gepflegte Zuhause bietet auf zwei großzügigen Wohnebenen sowie einem voll ausgestatteten Untergeschoss viel Raum für Familie, Freizeit und Komfort.
Im Eingangsbereich, dem Windfang, werden Sie...
Preisinformation
1 Garagenstellplatz
Weitere Informationen
Stichworte
Sonstiges: frei werdend
Anbieter der Immobilie

Graf Wohnbau GmbH
Römerweg 49, 71083 Herrenberg

Online-ID: 2nggg53
Referenznummer: B-25005/G3
Finde Angebote wie dieses
Hier geht es zu unserem Impressum, den Allgemeinen Geschäftsbedingungen, den Hinweisen zum Datenschutz und nutzungsbasierter Online-Werbung.