
Immobilienbüro Vogel GmbH
Herr Norman Vogel
+49 ···
Nr. anzeigenPreise & Kosten
Provision für Käufer
3,57 % (inkl. MwSt.)
Lage
Die Wohnung befindet sich im gewachsenen Wohngebiet Gartenberg in Geretsried, geprägt von gepflegten Mehrfamilienhäusern und viel Grün. Die ruhige, wohnfreundliche Umgebung eignet sich ideal für Einzelpersonen oder Paare, die eine angenehme Wohnlage mit guter Infrastruktur schätzen.
Einkaufsmöglichkeiten, Dienstleistungen...
Die Wohnung
Wohnungslage
Erdgeschoss
Wohnanlage
Energie & Heizung
Warum sehe ich diese Anzeige? – Du siehst diese Anzeige basierend auf Ihrer Navigation auf unserer Website und den Suchkriterien, die du verwendet hast.
Energieausweistyp
Verbrauchsausweis
Gebäudetyp
Wohngebäude
Baujahr laut Energieausweis
1971
Wesentliche Energieträger
FERN
Gültigkeit
bis 03.01.2028
Effizienzklasse
D
Endenergieverbrauch
119,00 kWh/(m²·a)
Weitere Energiedaten
Energieträger
Fernwärme
Details
Objektbeschreibung
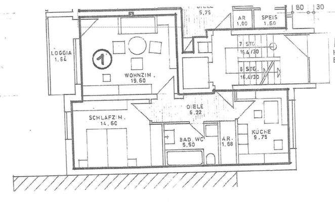
Die angebotene 2-Zimmer-Wohnung befindet sich im Hochparterre eines gepflegten Mehrfamilienhauses in zentraler Lage von Geretsried und bietet eine ideale Grundlage zur Verwirklichung individueller Wohnideen.
Auf ca. 60 m² überzeugt die Wohnung mit einem durchdachten Grundriss. Das helle Wohnzimmer verfügt über direkten...
Ausstattung
ca. 60 m² Wohnfläche
gelegen im Hochparterre einer gepflegten Wohnanlage
funktionaler und gut durchdachter 2-Zimmer-Grundriss
großzügiger Balkon mit direktem Zugang vom Wohnbereich
zentrale Wohnlage mit gewachsener Infrastruktur
Badezimmer mit zeitloser, weißer Fliesenausstattung
praktisches Kellerabteil mit...
Weitere Informationen
Sonstiges
Gerne stehen wir Ihnen für weitere Informationen oder einen Besichtigungstermin zur Verfügung. Kontaktieren Sie uns - wir helfen Ihnen gern, Ihr neues Zuhause und Ihre berufliche Basis zu entdecken.
Wir würden Sie bitten, die Informationen und Daten sehr vertraulich zu behandeln.
Sämtliche Angaben und...
Anbieter der Immobilie
Immobilienbüro Vogel GmbH
Otto-Heilmann-Str. 18a, 82031 Grünwald
Online-ID: 2ngbf5y
Referenznummer: 6831
Finde Angebote wie dieses
Hier geht es zu unserem Impressum, den Allgemeinen Geschäftsbedingungen, den Hinweisen zum Datenschutz und nutzungsbasierter Online-Werbung.