
Bendix Immobilien
Herr/Frau Frank Bendix
036 ···
Nr. anzeigenPreise & Kosten
Provision für Käufer
3,57 %
Lage
Das gepflegte Eigentumswohnanlage befindet sich im Zentrum der Gothaer Innenstadt in einem Ensemble von Wohnhäusern, die zum überwiegenden Teil ansprechend saniert sind. Hier wohnen Sie unmittelbar am Schloßpark und der Altstadt von Gotha- eine reizvolle Wohnlage. Der Wohnraum mit Südbalkon bietet einen schönen Ausblick auf...
Die Wohnung
Wohnungslage
3. Geschoss
Bezug
nach Vereinbarung
Wohnanlage
Energie & Heizung
Warum sehe ich diese Anzeige? – Du siehst diese Anzeige basierend auf Ihrer Navigation auf unserer Website und den Suchkriterien, die du verwendet hast.
Energieausweistyp
Verbrauchsausweis
Gebäudetyp
Wohngebäude
Baujahr laut Energieausweis
1969
Wesentliche Energieträger
Fernwärme Dampf
Gültigkeit
25.04.2028 bis 26.04.2018
Endenergieverbrauch
81,60 kWh/(m²·a)
Weitere Energiedaten
Energieträger
Fernwärme
Details
Objektbeschreibung
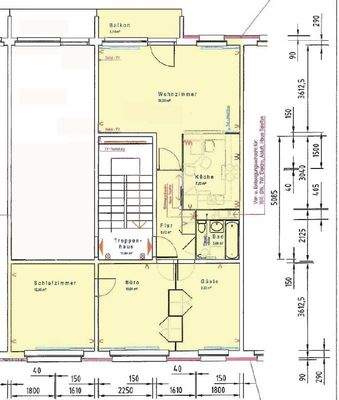
Die geräumige Vierzimmerwohnung befindet sich inmitten des Gothaer Zentrums und ist mit dem Fahrzeug erreichbar.
Das Gebäude wurde in den 1970er Jahren errichtet und ab 1994 in wesentlichen Teilen des Gemeinschaftseigentums saniert.
Das gemeinschaftliche Eigentum erhielt eine Wärmedämmfassade, neue Fenster, ebenso...
Weitere Informationen
Sonstiges
Baujahr: 1969
Energiekennwert: 81,6 kWh/(m²*a)
Befeuerung/Energieträger: Fernwärme Dampf
Energieausweistyp: Verbrauchsausweis
Heizungsart: Fernwärme
Stichworte
Nutzfläche: 5,00 m², 4 Etagen, modernisiert: 1994
Anbieter der Immobilie
Online-ID: 2ng995v
Referenznummer: 2419
Finde Angebote wie dieses
Hier geht es zu unserem Impressum, den Allgemeinen Geschäftsbedingungen, den Hinweisen zum Datenschutz und nutzungsbasierter Online-Werbung.