

RE/MAX Wohnerlebnis Eislingen
Herr Timo Seidel
+49 ···
Nr. anzeigenPreise & Kosten
Provision für Käufer
4,76 inkl. MwSt.
Lage
Die Immobilie befindet sich in zentraler Lage von Göppingen, einer etablierten Kreisstadt mit rund 58.000 Einwohnern im wirtschaftsstarken Landkreis Göppingen. Die Stadt profitiert von ihrer verkehrsgünstigen Anbindung im Großraum Stuttgart und stellt einen gefragten Wohn und Gewerbestandort dar.
Göppingen verfügt über...
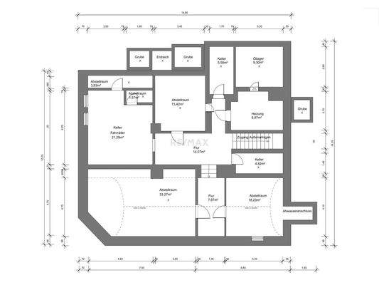
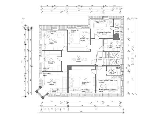
Das Haus
Kategorie
Mehrfamilienhaus
Baujahr
1897
Energie & Heizung
Warum sehe ich diese Anzeige? – Du siehst diese Anzeige basierend auf Ihrer Navigation auf unserer Website und den Suchkriterien, die du verwendet hast.
Energieausweistyp
Bedarfsausweis
Gebäudetyp
Wohngebäude
Baujahr laut Energieausweis
1897
Wesentliche Energieträger
GAS
Gültigkeit
bis 18.02.2036
Effizienzklasse
G
Endenergiebedarf
236,90 kWh/(m²·a)
Weitere Energiedaten
Energieträger
Gas
Details
Objektbeschreibung
Diese Immobilie ist mehr als ein klassisches Bestandsobjekt. Sie bietet Kapitalanlegern eine Kombination aus laufenden Einnahmen, strategischem Entwicklungsspielraum und langfristiger Perspektive.
Mehrere Wohneinheiten, eine vermietete Gewerbefläche im Erdgeschoss sowie eine aktuell freie Einheit schaffen eine solide...
Ausstattung
Gaszentralheizung, Wärmeerzeuger erneuert im Jahr 2020
Fenster im Jahr 2011 weitestgehend erneuert
Doppelgarage in Stahlbetonfertigbauweise sowie ein zusätzlicher Stellplatz
Drei Einbauküchen und vollständiges Interieur der Gaststätte im Eigentum der Verkäuferin
Preisinformation
699.000,00 EUR + 30.000 EUR, 1 Stellplatz
2 Garagenstellplätze, Kaufpreis je: 15.000,00 EUR
Weitere Informationen
Sonstiges
Folgende Kosten sind im Kaufpreis nicht enthalten und vom Käufer zusätzlich zu entrichten: Notar- und Grundbuchkosten (ca. 2 %), Grunderwerbsteuer (5 %), und die mit der Finanzierung entstehenden Kosten. 4,76 % Maklerprovision inkl. gesetzlicher MwSt.. Ab dem Zeitpunkt der Übergabe hat der Käufer die Grundsteuer...
Anbieter der Immobilie

Online-ID: 2ng935p
Referenznummer: 1148-1144-TS
Finde Angebote wie dieses
Hier geht es zu unserem Impressum, den Allgemeinen Geschäftsbedingungen, den Hinweisen zum Datenschutz und nutzungsbasierter Online-Werbung.