
Italia Immobilien
Frau Nadia Manuela Aron
004 ···
Nr. anzeigenPreise & Kosten
Provision für Käufer
3,66 % inkl. MwSt. inkl. MwSt.
Lage
Das Anwesen liegt auf dem Land, nicht abgeschieden, nur 10 Minuten mit dem Auto von der Stadt Perugia und dem Lago Trasimeno entfernt.
Das Haus
Kategorie
Bauernhaus
Baujahr
1700
Energie & Heizung
Warum sehe ich diese Anzeige? – Du siehst diese Anzeige basierend auf Ihrer Navigation auf unserer Website und den Suchkriterien, die du verwendet hast.
Weitere Energiedaten
Energieträger
Gas
Heizungsart
offener Kamin, Zentralheizung
Details
Objektbeschreibung
La Rocca hat sehr alte Ursprünge; sie steht auf den Ruinen eines römischen Castrum, von dem noch Spuren zu sehen sind. Das Bauwerk, wie es sich heute präsentiert, stammt aus dem 14. Jahrhundert und wurde zu Verteidigungszwecken errichtet. Später, im 18. Jahrhundert, wurde es zu einem Karmeliterkloster.
Es liegt in der...
Weitere Informationen
Stichworte
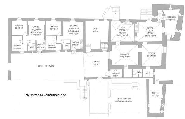
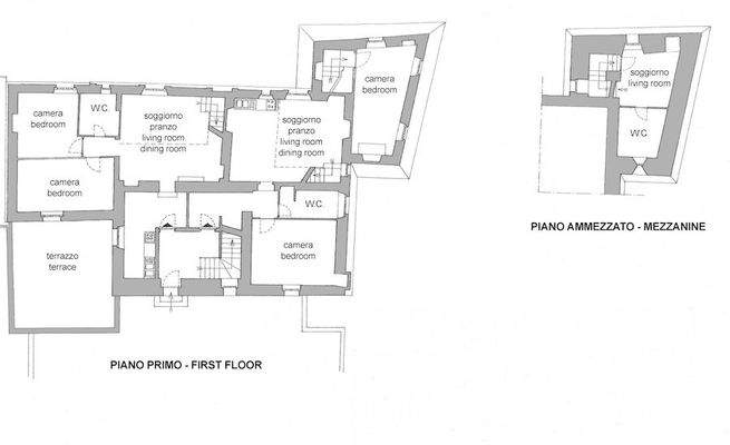
Gesamtfläche: 1.324,00 m², Anzahl der Schlafzimmer: 16, Anzahl der Badezimmer: 13, 4 Etagen
Anbieter der Immobilie
Online-ID: 2ng7z5u
Referenznummer: IT-00844
Finde Angebote wie dieses
Hier geht es zu unserem Impressum, den Allgemeinen Geschäftsbedingungen, den Hinweisen zum Datenschutz und nutzungsbasierter Online-Werbung.