
Rosenhof Immobilien & Capital- vermittlung GmbH
Frau Andrea Vorbeck
038 ···
Nr. anzeigenPreise & Kosten
Kaution
1.584,00 EUR
Warum sehe ich diese Anzeige? – Du siehst diese Anzeige basierend auf Ihrer Navigation auf unserer Website und den Suchkriterien, die du verwendet hast.
Lage
Makro Lage:
Das angebotene Objekt befindet sich in Schwerin, der kulturell geprägten Landeshauptstadt Mecklenburg-
Vorpommerns. Schwerin besticht besonders durch eine idyllische Architektur und den allseits beliebten
Schweriner See, welcher sich nur einen kurzen Fußweg von der Immobilie entfernt befindet...
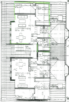
Die Wohnung
Wohnungslage
3. Geschoss
Bezug
01.05.2026
Wohnanlage
Energie & Heizung
Warum sehe ich diese Anzeige? – Du siehst diese Anzeige basierend auf Ihrer Navigation auf unserer Website und den Suchkriterien, die du verwendet hast.
Energieausweistyp
Verbrauchsausweis
Gebäudetyp
Wohngebäude
Wesentliche Energieträger
Erdgas schwer
Gültigkeit
18.06.2020 bis 18.06.2030
Effizienzklasse
C
Endenergieverbrauch
76,63 kWh/(m²·a)
Weitere Energiedaten
Heizungsart
Zentralheizung
Details
Objektbeschreibung
Diese wunderschöne Altbauwohnung befindet sich in der Schelfstadt von Schwerin. Die Wohnung liegt im Dachgeschoss in einem gepflegten und freundlichen Mehrfamilienhaus, dass 1996 vollständig saniert wurde.
Ausstattung
- Bad mit Fenster und Dusche
- Küche inkl. Einbauküche
- Wohnzimmer/Küche mit Laminatfußboden
- Schlafzimmer mit Teppich
- Privater Kellerraum
Weitere Informationen
Stichworte
Anzahl der Badezimmer: 1, Bundesland: Mecklenburg-Vorpommern, 3 Etagen
Anbieter der Immobilie
Online-ID: 2ng7q5s
Referenznummer: 129944531
Finde Angebote wie dieses
Hier geht es zu unserem Impressum, den Allgemeinen Geschäftsbedingungen, den Hinweisen zum Datenschutz und nutzungsbasierter Online-Werbung.