
Stelzig Immobilien
Herr Sebastian Stelzig
004 ···
Nr. anzeigenPreise & Kosten
Provision für Käufer
provisionsfrei
Lage
Die Wohnung befindet sich in ruhiger, gewachsener Wohnlage in der Glasmacherstraße in Finsterwalde (03238). Das Umfeld ist geprägt von Mehrfamilienhäusern und begrünten Außenanlagen.
Einkaufsmöglichkeiten, Schulen, Kitas und medizinische Versorgung sind in wenigen Minuten erreichbar. Eine gute Anbindung an den...
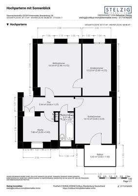
Die Wohnung
Wohnungslage
Erdgeschoss
Bezug
sofort
Wohnanlage
Energie & Heizung
Warum sehe ich diese Anzeige? – Du siehst diese Anzeige basierend auf Ihrer Navigation auf unserer Website und den Suchkriterien, die du verwendet hast.
Energieausweistyp
Verbrauchsausweis
Gebäudetyp
Wohngebäude
Wesentliche Energieträger
GAS
Gültigkeit
bis 08.01.2028
Effizienzklasse
D
Endenergieverbrauch
127,00 kWh/(m²·a)
Weitere Energiedaten
Energieträger
Fernwärme
Details
Objektbeschreibung
Diese frisch renovierte 3-Zimmer-Wohnung im Hochparterre überzeugt durch eine klare Raumaufteilung, helle Wohnräume und einen sonnigen Balkon mit Blick ins Grüne und auf den Sportplatz. Neue Fliesen in Bad und Küche sorgen für ein modernes Erscheinungsbild und unterstreichen den gepflegten Gesamteindruck.
Mit ca. 67 m²...
Ausstattung
Diese 3-Zimmer-Wohnung im Hochparterre wird derzeit frisch renoviert und bietet nach Fertigstellung ideale Voraussetzungen für Eigennutzer wie auch Kapitalanleger. Der Sonnenbalkon mit Blick ins Grüne und Richtung Sportplatz verleiht der Wohnung einen besonderen Charakter.
Eingangsbereich
+ Flur mit praktischem...
Weitere Informationen
Sonstiges
- Eine Besichtigung erfolgt nur nach vorab Vorlage eines Liquiditätsnachweises!
- Ein Exposé und einen Finanzierungscheck erhalten Sie automatisch nach Ihrer Anfrage.
- Bitte schauen Sie in ihren Spam-Ordner!
- Benötigen Sie Hilfe oder haben Sie Fragen, dann erreichen Sie mich...
Anbieter der Immobilie
Online-ID: 2ng7f5p
Referenznummer: Objekt-264
Finde Angebote wie dieses
Hier geht es zu unserem Impressum, den Allgemeinen Geschäftsbedingungen, den Hinweisen zum Datenschutz und nutzungsbasierter Online-Werbung.