
Gecko Maklerverbund GmbH & Co. KG
048 ···
Nr. anzeigenPreise & Kosten
Provision für Käufer
3,57% inkl. gestzl. MwSt
Lage
Die Doppelhaushälfte entsteht in einem Neubaugebiet in Leck - einem staatlich anerkannten Luftkurort im Norden Nordfrieslands. Leck gilt als lebenswerter Wohnstandort mit guter Infrastruktur und hoher Lebensqualität. Hier findest du alles, was du im Alltag brauchst: Supermärkte, Bäcker, Ärzte, Apotheke, Restaurants und...
Das Haus
Kategorie
Doppelhaushälfte
Baujahr
2026
Bezug
01.11.2026
Energie & Heizung
Warum sehe ich diese Anzeige? – Du siehst diese Anzeige basierend auf Ihrer Navigation auf unserer Website und den Suchkriterien, die du verwendet hast.
Energieausweistyp
Bedarfsausweis
Gebäudetyp
Wohngebäude
Wesentliche Energieträger
Fernwärme
Weitere Energiedaten
Energieträger
Fernwärme
Details
Objektbeschreibung
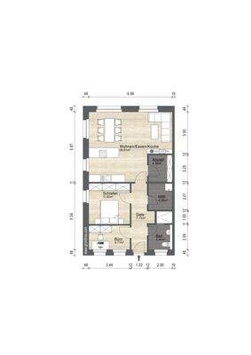
Diese Doppelhaushälfte entsteht als Teil eines modernen Neubau-Ensembles in einem Neubaugebiet in Leck. Der Grundriss ist klar, übersichtlich und ideal für Paare, Best Ager und kleine Familien.
Im Erdgeschoss stehen dir rund 84,5 m² zur Verfügung. Herzstück ist der große Wohn- und Essbereich mit offener Küche (ca...
Ausstattung
Neubau-Doppelhaushälfte im KfW-55-Standard
KfW-40-Paket mit PV & Speicher optional gegen Aufpreis buchbar
Wohnen auf einer Ebene mit rund 84,5 m² plus Ausbaureserve von ca. 57,9 m² im Dachgeschoss
Lichtdurchfluteter Wohn-Ess-Bereich mit bodentiefem Zugang zur Terrasse
Fernwärme &...
Preisinformation
2 Carportplätze
Weitere Informationen
Sonstiges
Bitte beachten Sie:
Wir bearbeiten ausschließlich Anfragen, die vollständige Kontaktdaten einschließlich Adresse und Telefonnummer enthalten.
Alle Angaben beruhen auf Informationen, die uns von Dritten zur Verfügung gestellt wurden. Wir übernehmen keine Gewähr für ihre Richtigkeit, Aktualität oder...
Anbieter der Immobilie
Online-ID: 2ng695a
Referenznummer: Gecko 5097
Finde Angebote wie dieses
Hier geht es zu unserem Impressum, den Allgemeinen Geschäftsbedingungen, den Hinweisen zum Datenschutz und nutzungsbasierter Online-Werbung.