

Demetrius Peter Immobilienmakler
Herr Demetrius Peter
015 ···
Nr. anzeigenPreise & Kosten
Provision für Käufer
Die Maklercourtage beträgt 4,76% inkl. MwSt. Zahlbar bei Abschluss eines Notariellen Kaufvertrages.
Lage
Das Objekt liegt in einer zentralen Lage von Borbeck-Süd, einem Stadtteil, der für seine hohe Lebensqualität bekannt ist. Die Nachbarschaft ist geprägt von einer angenehmen Mischung aus Wohn- und Geschäftshäusern, die eine lebendige Atmosphäre schaffen. In unmittelbarer Nähe finden Sie zahlreiche Einkaufsmöglichkeiten...
Das Haus
Kategorie
Mehrfamilienhaus
Baujahr
1973
Bezug
sofort
Derzeitige Nutzung
vermietet, frei
Energie & Heizung
Warum sehe ich diese Anzeige? – Du siehst diese Anzeige basierend auf Ihrer Navigation auf unserer Website und den Suchkriterien, die du verwendet hast.
Energieausweistyp
Bedarfsausweis
Gebäudetyp
Wohngebäude
Baujahr laut Energieausweis
2023
Wesentliche Energieträger
Gas
Gültigkeit
27.05.2025 bis 27.05.2035
Effizienzklasse
C
Endenergiebedarf
93,70 kWh/(m²·a)
Weitere Energiedaten
Energieträger
Gas
Heizungsart
Zentralheizung
Details
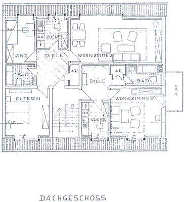
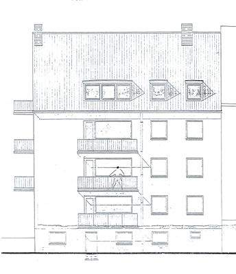
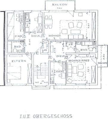
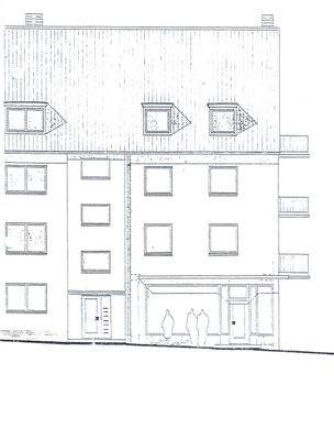
Objektbeschreibung
Willkommen in diesem attraktiven und vielseitigen Wohn-Geschäftshaus, das sich in der begehrten Wohngegend von Essen Borbeck-Süd befindet. Dieses moderne Gebäude kombiniert Wohnkomfort mit gewerblichem Potenzial und bietet sowohl Investoren als auch Selbstnutzern eine hervorragende Gelegenheit.
Das 3-geschossige...
Ausstattung
-Baujahr 1973
-Ca. 445 m² Wohnfläche, 33 m² Gewerbefläche
-Ca. 450 m² Grundstück
-20,5 Zimmer
-Massivmauerwerk
-Voll unterkellert, Decke gedämmt (2023 Wände, Böden gestrichen)
-Satteldach 140 Dämmwolle (2013)
-Fassade 140 Dämmung+ Putz (2013)
-Befestigte Hoffläche
-7 Einheiten+...
Weitere Informationen
Ein Energiebedarfsausweis aus 2025 ist vorhanden.
Die Maklercourtage beträgt 4,76% inkl. MwSt. Zahlbar bei Abschluss eines Notariellen Kaufvertrages.
Alle Informationen stammen vom Eigentümer und werden ohne Gewähr weitergegeben. Änderungen und Zwischenverkäufe sind vorbehalten.
Wenn wir Ihr Interesse...
Anbieter der Immobilie
Demetrius Peter Immobilienmakler
Grundschötteler Str. 82, 58300 Wetter (Ruhr)

Online-ID: 2ng5j5j
Referenznummer: 025WGHEF01
Finde Angebote wie dieses
Hier geht es zu unserem Impressum, den Allgemeinen Geschäftsbedingungen, den Hinweisen zum Datenschutz und nutzungsbasierter Online-Werbung.