

KHC Bauträger GmbH
Frau Janet Schrepel
037 ···
Nr. anzeigenPreise & Kosten
Provision für Käufer
provisionsfrei
Lage
Das Grundstück befindet sich im neuen Baugebiet in Chemnitz-Adelsberg. Es gibt noch eine Vielzahl an Grundstücken in unterschiedlichen Größen.
Kern-Haus Chemnitz berät Sie gern umfassend zum Thema Hausbau. Melden Sie sich gern!
Der gezeigte Preis versteht sich inklusive Grundstück und exklusive...
Das Haus
Kategorie
Einfamilienhaus
Baujahr
2026
Energie & Heizung
Warum sehe ich diese Anzeige? – Du siehst diese Anzeige basierend auf Ihrer Navigation auf unserer Website und den Suchkriterien, die du verwendet hast.
Energieausweistyp
Bedarfsausweis
Gebäudetyp
Wohngebäude
Baujahr laut Energieausweis
2026
Wesentliche Energieträger
Strom
Gültigkeit
seit 04.01.2016
Effizienzklasse
A+
Endenergiebedarf
17,52 kWh/(m²·a)
Weitere Energiedaten
Energieträger
Elektro
Heizungsart
Fußbodenheizung, Zentralheizung
Details
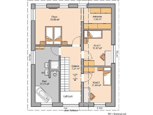
Objektbeschreibung
Willkommen im Familienhaus Enjoy! Hier können Sie Ihr Leben genießen und sich richtig wohlfühlen!
Das Haus überzeugt mit einem großen Wohnbereich mit vielen Fenstern, der in eine offene Küche übergeht. Auch von dieser gelangen Sie in die Diele mit Garderobennische. Neben dem Hauswirtschaftsraum und einem Gästebad...
Ausstattung
5 Zimmer, offene Küche, Diele, WC, Galerie, Bad, Ankleide, Hauswirtschaftsraum
Das gezeigte Traumhaus im Überblick:
+ Schlüsselfertiges Massivhaus im Sinne der Ausstattungsbeschreibung "Easy"
+ Inklusive Bodenplatte
Beste Markenausstattung in jedem Kern-Haus:
+ Zimmermannsmäßiger Dachstuhl aus...
Weitere Informationen
Sonstiges
Wir stellen uns vor:
Bei Kern-Haus Chemnitz kümmern sich 10 Beschäftigte um das gute Gelingen Ihres Traumhauses. Alle Leistungen werden von unseren Mitarbeitern vor Ort erbracht - von der Beratung, über die Planung bis hin zur Bauleitung. Die Bauleistungen an Ihrem Kern-Haus führen regionale Bauunternehmen...
Anbieter der Immobilie

Online-ID: 2ng3h5g
Referenznummer: KH 77_01
Finde Angebote wie dieses
Hier geht es zu unserem Impressum, den Allgemeinen Geschäftsbedingungen, den Hinweisen zum Datenschutz und nutzungsbasierter Online-Werbung.