

Spittel Bau GmbH
Frau Lea Schuhmacher
074 ···
Nr. anzeigenPreise & Kosten
Provision für Käufer
3.57 % inkl. MwSt.
Lage
Rund 21.000 Einwohner wohnen in der Schramberger Talstadt bzw. im Stadtteil Tennenbronn und auf der umliegenden Hochebene in den Stadtteilen Sulgen, Waldmössingen, Heiligenbronn und Schönbronn. Ursprünglich Uhren- und Industriestadt, hat sich Schramberg heute zu einer modernen Stadt entwickelt, die Kultur, Bildung, Sport...
Das Haus
Kategorie
Mehrfamilienhaus
Baujahr
1972
Bezug
01.12.2026
Energie & Heizung
Warum sehe ich diese Anzeige? – Du siehst diese Anzeige basierend auf Ihrer Navigation auf unserer Website und den Suchkriterien, die du verwendet hast.
Energieausweistyp
Bedarfsausweis
Gebäudetyp
Wohngebäude
Baujahr laut Energieausweis
1972
Gültigkeit
bis 20.03.2028
Effizienzklasse
C
Endenergiebedarf
77,20 kWh/(m²·a)
Weitere Energiedaten
Energieträger
Elektro
Heizungsart
Fußbodenheizung, Zentralheizung
Details
Objektbeschreibung
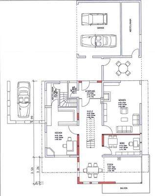
Dieses großzügige Zweifamilienhaus vereint modernen Wohnkomfort mit einem außergewöhnlichen Platzangebot und bietet ideale Voraussetzungen für Familien, Mehrgenerationenwohnen oder die Kombination aus Eigennutzung und Vermietung. Auf einer Gesamtwohnfläche von ca. 326,97 m², verteilt auf drei Ebenen, eröffnet sich ein...
Ausstattung
Untergeschoss (UG) Einliegerwohnung und Nebenflächen
- Einliegerwohnung mit 3 Zimmern, Diele, Küche mit Einbauküche und Vorratsraum
- Badezimmer mit Badewanne, separates WC
- Abstellflächen nutzbar als Hobbyraum oder kleine Werkstatt
Erdgeschoss (EG) Hauptwohnbereich
- Großzügiger Eingangsbereich...
Weitere Informationen
Sonstiges
Energieausweis: Bedarfsausweis gültig von: 21.03.2018
Endenergiebedarf Wärme: 77.2 kWh/(m²a)
Energieeffizienzklasse: C
Baujahr: 1972
Beim Kauf der nachfolgend angebotenen
Immobilie beträgt der monatliche Aufwand: 3.760,36 EUR
bei einem Kaufpreis von 925.000,00 EUR
+ Notar u...
Anbieter der Immobilie

Online-ID: 2ng2x5d
Referenznummer: 3051
Finde Angebote wie dieses
Hier geht es zu unserem Impressum, den Allgemeinen Geschäftsbedingungen, den Hinweisen zum Datenschutz und nutzungsbasierter Online-Werbung.