
Bremenliving.de I Hanseatische Immobilien
Herr Jan Bischoff
+49 ···
Nr. anzeigenPreise & Kosten
Provision für Käufer
Käuferprovision 3,57% (inkl. 19% Mwst.) auf den Kaufpreis
Lage
Bremen-Oberneuland, und insbesondere die Oberneulander Landstraße, bietet eine sehr charmante, fast dörfliche Wohnlage, in einer der besten Wohngegenden Bremens. Die gehobene Wohnqualität zeichnet sich durch die umliegende Bebauung mit zum Teil stattlichen Villen, weitläufigen Parkanlagen, sowie ausreichenden...
Das Haus
Kategorie
Reihenendhaus
Baujahr
1924
Bezug
sofort
Derzeitige Nutzung
frei
Energie & Heizung
Warum sehe ich diese Anzeige? – Du siehst diese Anzeige basierend auf Ihrer Navigation auf unserer Website und den Suchkriterien, die du verwendet hast.
Weitere Energiedaten
Energieträger
Öl
Heizungsart
Ofen, Zentralheizung
Details
Objektbeschreibung
Das Kaufobjekt ist Teil einer kleinen Wohnanlage bestehend aus 3 Reihenhäusern und wurde in ca. 1924 erbaut. Jedes Haus verfügt über eine eigene Zufahrt über das Fleet.
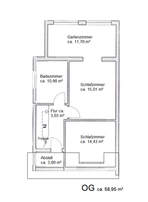
Die insgesamt zur Verfügung stehende Wohnfläche beträgt 147 m² und teilt sich wie folgt auf:
* im EG: Windfang, Diele, Gäste-WC, 3 Zimmer...
Weitere Informationen
Wir von Bremenliving.de | Hanseatische Immobilien sind seit Jahren auf die Vermittlung von hochwertigen Immobilien in guten Lagen spezialisiert. Gerne übernehmen wir auch für Sie den diskreten Verkauf Ihrer Immobilie zu Top-Konditionen. Service, Professionalität und Zuverlässigkeit zeichnen unsere Vorgehensweise aus. Wir...
Anbieter der Immobilie
Bremenliving.de I Hanseatische Immobilien
Bremen, 28213 Bremen
Online-ID: 2nfyr55
Finde Angebote wie dieses
Hier geht es zu unserem Impressum, den Allgemeinen Geschäftsbedingungen, den Hinweisen zum Datenschutz und nutzungsbasierter Online-Werbung.